Aak 17
9606 PX, Kropswolde
€ 1.149.000 k.k.
Omschrijving
Op een toplocatie aan het Zuidlaardermeer gelegen villa met zeer breed waterfront perceel (ca. 55 meter).
Aan de Aak 17 bent u gegarandeerd van een permanent vakantiegevoel, een optimale zonligging en alle rust en ruimte die u maar wenst. De villa is in de kenmerkt zich door een hoog afwerkingniveau, een speelse indeling met knusse hoeken en veel licht en zicht op het achtergelegen water.
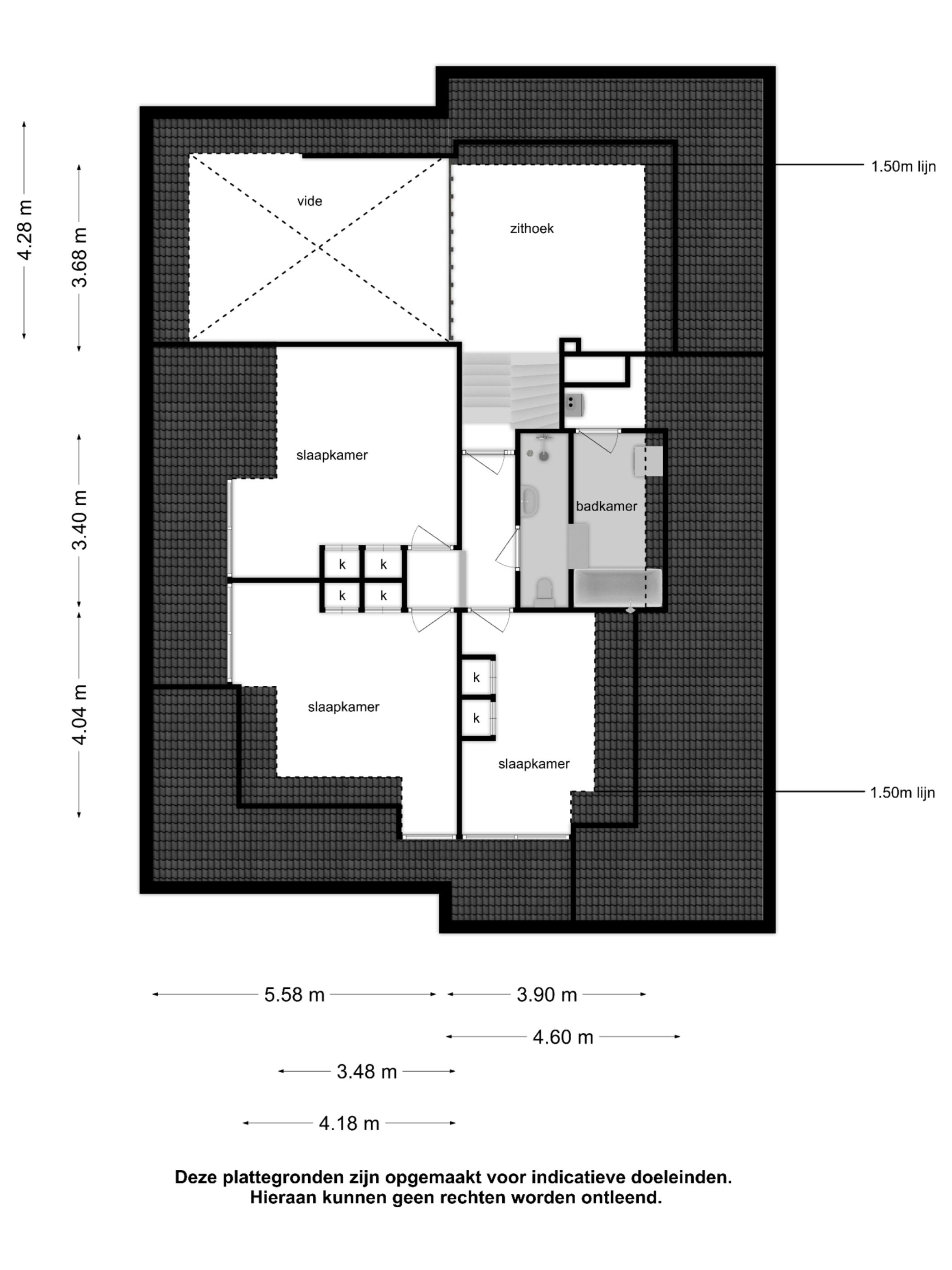
De woning aan de Aak 17 kenmerkt zich door een breed waterfront en een tuinligging op het zuid-westen. Hierdoor is de focus op het achtergelegen water en het buitenleven maximaal. De woning heeft een robuuste uitstraling en kenmerkt zich door een markante indeling met meerdere zithoeken die een fraai zicht over het water bieden. De woning biedt op de begane grond onder meer een royale woonkamer met eethoek, waarbij er een prachtig zicht op het water is. Naast de woonkamer is een separate halfopen kamer gelegen, die momenteel als bar in gebruik is, maar ook kan functioneren als bibliotheek, werkkamer of speelkamer. Op de vide bevindt zich een lichte tweede woonkamer met een open haard. Het gehele zitgedeelte van het huis beschikt over een extra hoog balkenplafond hetgeen een warm en ruim gevoel geeft. Verder biedt de woning op de begane grond de keuken, de eethoek, 1 slaapkamer met badkamer, op de 1e verdieping nog 3 slaapkamers (waarvan 1 als kantoor in gebruik), een 2e volledig geoutilleerde luxe badkamer, een bijkeuken en een inpandige garage voor 2 auto's.
De villa is gelegen op een breed perceel van 1.584 m2 met een optimale zonligging. De tuin is hoofdzakelijk gericht op het zuidwesten, maar vanwege de ligging rondom het huis kan er de gehele dag van de zon worden genoten. De tuin biedt een fraai uitzicht, meerdere terrassen, veel privacy en een riante aanlegsteiger voor meerdere boten en zwemtrap.
Het wonen in Meerwijck staat voor wonen met een permanent vakantiegevoel. Meerwijck ligt in een prachtig natuurgebied met bossen, polders, vergezichten en natuurlijk het Zuidlaardermeer. Vanuit de achtertuin van Aak 17 vaart u binnen 5 minuten op dit meer met velerlei recreatievoorzieningen en paviljoens. De Aak is een gezellige en groene doodlopende straat met unieke woonhuizen. De basisschool van Kropswolde bevindt zich op 500 m afstand. Het treinstation van Kropswolde is op 5 fietsminuten afstand gelegen (4x per uur een trein naar Groningen, ca. 12 min reistijd). Binnen een aantal minuten is de A7 bereikbaar waardoor de stad Groningen ook met de auto snel en eenvoudig te bereiken is.
INDELING:
Begane grond:
Entree/ruime hal, garderobe-nis, modern wandcloset met fonteintje, slaapkamer (ca. 16m²) met deur naar het terras en eigen moderne badkamer met douche en wastafelmeubel. Royale living met splitlevel verdeling van circa 85m²! verdeeld in een watergericht zit- en eetkamerdeel, naastgelegen halfopen (werk)ruimte, en moderne keuken, vide met hoog balkenplafond en ruim zitgedeelte onder de kap met inbouw gashaard. De luxe Bulthaup keuken is strak vormgegeven en onder andere voorzien van een vaatwasser, koelkast, 5pits gaskookplaat, rvs-afzuigkap, combimagnetron en apothekerskasten. Via de keukendeur verkrijgt u toegang tot het terras (deels beschut, overdekt en op zon gelegen). Vanuit de living wordt tevens toegang verkregen tot de ruime bijkeuken met keukenblok en veel kastruimte, cv-ruimte, deur naar de tuin en aansluitend toegang naar de inpandige diepe garage (circa 3x10m) met ruimte voor twee auto's en elektrische kanteldeur.
Verdieping:
Drie ruime slaapkamers resp. circa 19, 18 en 15m², tweede complete -lichte, neutrale en luxe - badkamer met verdiept ligbad/jacuzzi, inloopdouche, wandcloset en wastafelmeubel.
Mocht u meer informatie over deze fraaie watervilla wensen dan vernemen wij dat graag. Onze makelaars leiden u graag rond om de woonbeleving van deze fraaie woning te ervaren!
Aan de Aak 17 bent u gegarandeerd van een permanent vakantiegevoel, een optimale zonligging en alle rust en ruimte die u maar wenst. De villa is in de kenmerkt zich door een hoog afwerkingniveau, een speelse indeling met knusse hoeken en veel licht en zicht op het achtergelegen water.
De woning aan de Aak 17 kenmerkt zich door een breed waterfront en een tuinligging op het zuid-westen. Hierdoor is de focus op het achtergelegen water en het buitenleven maximaal. De woning heeft een robuuste uitstraling en kenmerkt zich door een markante indeling met meerdere zithoeken die een fraai zicht over het water bieden. De woning biedt op de begane grond onder meer een royale woonkamer met eethoek, waarbij er een prachtig zicht op het water is. Naast de woonkamer is een separate halfopen kamer gelegen, die momenteel als bar in gebruik is, maar ook kan functioneren als bibliotheek, werkkamer of speelkamer. Op de vide bevindt zich een lichte tweede woonkamer met een open haard. Het gehele zitgedeelte van het huis beschikt over een extra hoog balkenplafond hetgeen een warm en ruim gevoel geeft. Verder biedt de woning op de begane grond de keuken, de eethoek, 1 slaapkamer met badkamer, op de 1e verdieping nog 3 slaapkamers (waarvan 1 als kantoor in gebruik), een 2e volledig geoutilleerde luxe badkamer, een bijkeuken en een inpandige garage voor 2 auto's.
De villa is gelegen op een breed perceel van 1.584 m2 met een optimale zonligging. De tuin is hoofdzakelijk gericht op het zuidwesten, maar vanwege de ligging rondom het huis kan er de gehele dag van de zon worden genoten. De tuin biedt een fraai uitzicht, meerdere terrassen, veel privacy en een riante aanlegsteiger voor meerdere boten en zwemtrap.
Het wonen in Meerwijck staat voor wonen met een permanent vakantiegevoel. Meerwijck ligt in een prachtig natuurgebied met bossen, polders, vergezichten en natuurlijk het Zuidlaardermeer. Vanuit de achtertuin van Aak 17 vaart u binnen 5 minuten op dit meer met velerlei recreatievoorzieningen en paviljoens. De Aak is een gezellige en groene doodlopende straat met unieke woonhuizen. De basisschool van Kropswolde bevindt zich op 500 m afstand. Het treinstation van Kropswolde is op 5 fietsminuten afstand gelegen (4x per uur een trein naar Groningen, ca. 12 min reistijd). Binnen een aantal minuten is de A7 bereikbaar waardoor de stad Groningen ook met de auto snel en eenvoudig te bereiken is.
INDELING:
Begane grond:
Entree/ruime hal, garderobe-nis, modern wandcloset met fonteintje, slaapkamer (ca. 16m²) met deur naar het terras en eigen moderne badkamer met douche en wastafelmeubel. Royale living met splitlevel verdeling van circa 85m²! verdeeld in een watergericht zit- en eetkamerdeel, naastgelegen halfopen (werk)ruimte, en moderne keuken, vide met hoog balkenplafond en ruim zitgedeelte onder de kap met inbouw gashaard. De luxe Bulthaup keuken is strak vormgegeven en onder andere voorzien van een vaatwasser, koelkast, 5pits gaskookplaat, rvs-afzuigkap, combimagnetron en apothekerskasten. Via de keukendeur verkrijgt u toegang tot het terras (deels beschut, overdekt en op zon gelegen). Vanuit de living wordt tevens toegang verkregen tot de ruime bijkeuken met keukenblok en veel kastruimte, cv-ruimte, deur naar de tuin en aansluitend toegang naar de inpandige diepe garage (circa 3x10m) met ruimte voor twee auto's en elektrische kanteldeur.
Verdieping:
Drie ruime slaapkamers resp. circa 19, 18 en 15m², tweede complete -lichte, neutrale en luxe - badkamer met verdiept ligbad/jacuzzi, inloopdouche, wandcloset en wastafelmeubel.
Mocht u meer informatie over deze fraaie watervilla wensen dan vernemen wij dat graag. Onze makelaars leiden u graag rond om de woonbeleving van deze fraaie woning te ervaren!
Lees meer
Kenmerken
- Aantal kamers: 7
- Woonoppervlakte: 220 m²
- Perceeloppervlakte: 1584 m²
- Inhoud: 860 m³
- Bouwjaar: 1977
- Energielabel: D
Media
Downloads
Brochure
Omschrijving
Op een toplocatie aan het Zuidlaardermeer gelegen villa met zeer breed waterfront perceel (ca. 55 meter).Aan de Aak 17 bent u gegarandeerd van een permanent vakantiegevoel, een optimale zonligging en alle rust en ruimte die u maar wenst. De villa is in de kenmerkt zich door een hoog afwerkingniveau, een speelse indeling met knusse hoeken en veel licht en zicht op het achtergelegen water.
De woning aan de Aak 17 kenmerkt zich door een breed waterfront en een tuinligging op het zuid-westen. Hierdoor is de focus op het achtergelegen water en het buitenleven maximaal. De woning heeft een robuuste uitstraling en kenmerkt zich door een markante indeling met meerdere zithoeken die een fraai zicht over het water bieden. De woning biedt op de begane grond onder meer een royale woonkamer met eethoek, waarbij er een prachtig zicht op het water is. Naast de woonkamer is een separate halfopen kamer gelegen, die momenteel als bar in gebruik is, maar ook kan functioneren als bibliotheek, werkkamer of speelkamer. Op de vide bevindt zich een lichte tweede woonkamer met een open haard. Het gehele zitgedeelte van het huis beschikt over een extra hoog balkenplafond hetgeen een warm en ruim gevoel geeft. Verder biedt de woning op de begane grond de keuken, de eethoek, 1 slaapkamer met badkamer, op de 1e verdieping nog 3 slaapkamers (waarvan 1 als kantoor in gebruik), een 2e volledig geoutilleerde luxe badkamer, een bijkeuken en een inpandige garage voor 2 auto's.
De villa is gelegen op een breed perceel van 1.584 m2 met een optimale zonligging. De tuin is hoofdzakelijk gericht op het zuidwesten, maar vanwege de ligging rondom het huis kan er de gehele dag van de zon worden genoten. De tuin biedt een fraai uitzicht, meerdere terrassen, veel privacy en een riante aanlegsteiger voor meerdere boten en zwemtrap.
Het wonen in Meerwijck staat voor wonen met een permanent vakantiegevoel. Meerwijck ligt in een prachtig natuurgebied met bossen, polders, vergezichten en natuurlijk het Zuidlaardermeer. Vanuit de achtertuin van Aak 17 vaart u binnen 5 minuten op dit meer met velerlei recreatievoorzieningen en paviljoens. De Aak is een gezellige en groene doodlopende straat met unieke woonhuizen. De basisschool van Kropswolde bevindt zich op 500 m afstand. Het treinstation van Kropswolde is op 5 fietsminuten afstand gelegen (4x per uur een trein naar Groningen, ca. 12 min reistijd). Binnen een aantal minuten is de A7 bereikbaar waardoor de stad Groningen ook met de auto snel en eenvoudig te bereiken is.
INDELING:
Begane grond:
Entree/ruime hal, garderobe-nis, modern wandcloset met fonteintje, slaapkamer (ca. 16m²) met deur naar het terras en eigen moderne badkamer met douche en wastafelmeubel. Royale living met splitlevel verdeling van circa 85m²! verdeeld in een watergericht zit- en eetkamerdeel, naastgelegen halfopen (werk)ruimte, en moderne keuken, vide met hoog balkenplafond en ruim zitgedeelte onder de kap met inbouw gashaard. De luxe Bulthaup keuken is strak vormgegeven en onder andere voorzien van een vaatwasser, koelkast, 5pits gaskookplaat, rvs-afzuigkap, combimagnetron en apothekerskasten. Via de keukendeur verkrijgt u toegang tot het terras (deels beschut, overdekt en op zon gelegen). Vanuit de living wordt tevens toegang verkregen tot de ruime bijkeuken met keukenblok en veel kastruimte, cv-ruimte, deur naar de tuin en aansluitend toegang naar de inpandige diepe garage (circa 3x10m) met ruimte voor twee auto's en elektrische kanteldeur.
Verdieping:
Drie ruime slaapkamers resp. circa 19, 18 en 15m², tweede complete -lichte, neutrale en luxe - badkamer met verdiept ligbad/jacuzzi, inloopdouche, wandcloset en wastafelmeubel.
Mocht u meer informatie over deze fraaie watervilla wensen dan vernemen wij dat graag. Onze makelaars leiden u graag rond om de woonbeleving van deze fraaie woning te ervaren!
Kenmerken
Overdracht
- Vraagprijs
- € 1.149.000 k.k.
- Status
- Ingetrokken Tijdelijk
- Aanvaarding
- In Overleg
Bouw
- Type woning
- Villa
- Soort Bouw
- Bestaande Bouw
- Bouwjaar
- 1977
- Daktype
- Schilddak
Oppervlakte en Inhoud
- Woonoppervlakte
- 220 m²
- Externe Bergruimte
- 0 m²
- Perceel
- 1174 m²
- Totale kadastrale oppervlakte
- 1584 m²
- Inhoud
- 860 m³
Indeling
- Aantal kamers
- 7
- Badkamer(s) voorzieningen
- Ligbad, Toilet, Wastafel, Inloopdouche, Whirlpool, Douche
- Woonlagen
- 1
Energie
- Energielabel
- D
- Isolatievormen
- Dakisolatie, Muurisolatie, Vloerisolatie, Dubbel Glas, Volledig Geisoleerd
- Verwarming
- Hete Lucht Verwarming, Houtkachel, Gashaard
- Warmwater
- Cv Ketel
- Type CV Ketel
Kadastrale gegevens
- Oppervlakte Kadastraal
- 1584 m²
- Omvang Kadastraal
- Geheel Perceel
Buitenruimte
- Liggingen
- Aan Water, Aan Rustige Weg, In Woonwijk, Vrij Uitzicht, Beschutte Ligging, Aan Vaarwater, In Bosrijke Omgeving
- Tuin
- Tuin Rondom
- Locatie
- -
Bergruimte
- Schuur/Berging
- Inpandig
Parkeergelegenheid
- Parkeergelegenheid
- Op Eigen Terrein
Garage
- Soort(en) Garage
- Inpandig
- Voorzieningen Garage
- Elektra, Elektrische Deur
- Capaciteit Garage
- 2
Media
Buurtinfo
Downloads
Brochure
Ken uw buurt
Aak 17,
9606 PX, Kropswolde
Voorzieningen in de buurt
Buurtstatistieken
Hypotheekgesprek aanvragen