De Sitterstraat 11 a
9721 ET, Groningen
€ 450.000 k.k.
Omschrijving
Charmante jaren ’30 bovenwoning met dakterras in de geliefde wijk Helpman
Prachtig op een hoek gelegen bevindt zich deze sfeervolle jaren ’30 bovenwoning uit 1935. De woning beschikt over een royaal en prettige woonplattegrond en is de afgelopen jaren met zorg bewoond en gemoderniseerd. Zo is de keuken in 2020 vernieuwd, boven een extra toilet gerealiseerd en is het dak in 2021 vervangen, waarbij direct een heerlijk dakterras is gerealiseerd!
Via de entree met trapopgang bereikt u de indrukwekkende woonkamer. Deze is ruim, licht en stijlvol en valt direct op door de unieke glas in lood erker, de fraai geornamenteerde hoge plafonds en de elegante visgraat parketvloer. Op deze woonlaag bevindt zich tevens de moderne keuken met toegang tot het balkon, een fijne plek voor een kop koffie in de ochtendzon. Op de verdieping bevinden zich drie slaapkamers, waarvan twee ruim bemeten. Daarnaast is er een nette en verzorgde badkamer aanwezig, voorzien van een inloopdouche en een vaste wastafel. Een vaste trap geeft toegang tot het dakterras. Een heerlijke plek waar u met een prachtig uitzicht over de wijk kunt genieten van de zon en de buitenlucht.
De ligging is ideaal. Winkels, restaurants, sportvoorzieningen, scholen en het zwembad liggen op loopafstand. Met de fiets bent u binnen vijftien minuten op de Grote Markt in het bruisende centrum van Groningen. Ook de uitvalswegen A7 en A28 zijn snel en eenvoudig bereikbaar.
Kortom: een karakteristieke en sfeervolle bovenwoning met uniek dakterras!
INDELING:
Begane grond:
Entree met trapopgang.
Eerste verdieping:
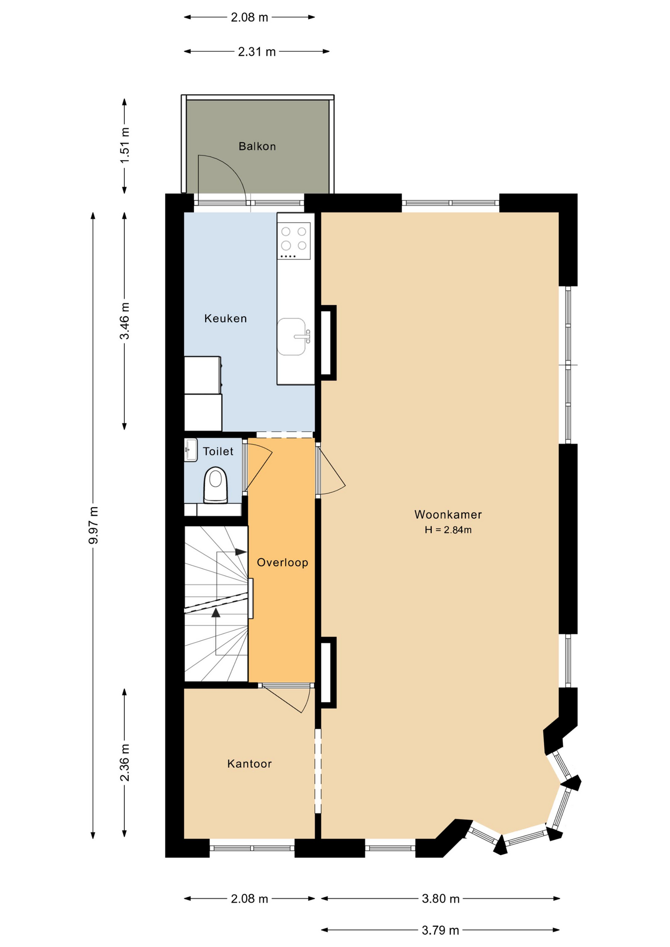
Overloop met toilet, prachtige, ruime, lichte en stijlvolle woonkamer (ca. 44 m² inclusief studeerkamer) met unieke glas-in-lood erker, fraaie geornamenteerde hoge plafonds en een visgraat parketvloer. Een moderne keuken (2020) voorzien van diverse inbouwapparatuur en met toegang tot het balkon op westen.
Tweede verdieping:
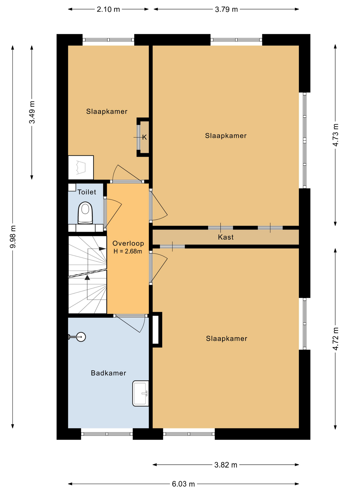
Overloop, drie mooie slaapkamers van 18, 18 en 8 m², waarvan de 2 grootste met vaste kasten, verzorgde badkamer met ruime inloopdouche en wastafel, separaat toilet.
BIJZONDERHEDEN:
Bouwjaar: 1935
Energielabel: C
Woonoppervlak: ca. 121 m²
Instapklare karakteristieke jaren ‘30 woning
Voorzien van een Cv-combiketel (2020)
Alle ramen behalve de erker zijn voorzien van HR++
Dak is volledig vernieuwd en dakterras gerealiseerd (2021)
Veel privacy op het dakterras en is met vergunning aangelegd incl. water en elektra
Mogelijkheid tot zonnepanelen plaatsen op het dak
Gezamenlijke fietsenberging in de brandgang
Op korte afstand van winkelcentrum Helpman, scholen, kinderopvang en bushalte
Uitvalswegen A 28 en A 7 op 5 autominuten
Prachtig op een hoek gelegen bevindt zich deze sfeervolle jaren ’30 bovenwoning uit 1935. De woning beschikt over een royaal en prettige woonplattegrond en is de afgelopen jaren met zorg bewoond en gemoderniseerd. Zo is de keuken in 2020 vernieuwd, boven een extra toilet gerealiseerd en is het dak in 2021 vervangen, waarbij direct een heerlijk dakterras is gerealiseerd!
Via de entree met trapopgang bereikt u de indrukwekkende woonkamer. Deze is ruim, licht en stijlvol en valt direct op door de unieke glas in lood erker, de fraai geornamenteerde hoge plafonds en de elegante visgraat parketvloer. Op deze woonlaag bevindt zich tevens de moderne keuken met toegang tot het balkon, een fijne plek voor een kop koffie in de ochtendzon. Op de verdieping bevinden zich drie slaapkamers, waarvan twee ruim bemeten. Daarnaast is er een nette en verzorgde badkamer aanwezig, voorzien van een inloopdouche en een vaste wastafel. Een vaste trap geeft toegang tot het dakterras. Een heerlijke plek waar u met een prachtig uitzicht over de wijk kunt genieten van de zon en de buitenlucht.
De ligging is ideaal. Winkels, restaurants, sportvoorzieningen, scholen en het zwembad liggen op loopafstand. Met de fiets bent u binnen vijftien minuten op de Grote Markt in het bruisende centrum van Groningen. Ook de uitvalswegen A7 en A28 zijn snel en eenvoudig bereikbaar.
Kortom: een karakteristieke en sfeervolle bovenwoning met uniek dakterras!
INDELING:
Begane grond:
Entree met trapopgang.
Eerste verdieping:
Overloop met toilet, prachtige, ruime, lichte en stijlvolle woonkamer (ca. 44 m² inclusief studeerkamer) met unieke glas-in-lood erker, fraaie geornamenteerde hoge plafonds en een visgraat parketvloer. Een moderne keuken (2020) voorzien van diverse inbouwapparatuur en met toegang tot het balkon op westen.
Tweede verdieping:
Overloop, drie mooie slaapkamers van 18, 18 en 8 m², waarvan de 2 grootste met vaste kasten, verzorgde badkamer met ruime inloopdouche en wastafel, separaat toilet.
BIJZONDERHEDEN:
Bouwjaar: 1935
Energielabel: C
Woonoppervlak: ca. 121 m²
Instapklare karakteristieke jaren ‘30 woning
Voorzien van een Cv-combiketel (2020)
Alle ramen behalve de erker zijn voorzien van HR++
Dak is volledig vernieuwd en dakterras gerealiseerd (2021)
Veel privacy op het dakterras en is met vergunning aangelegd incl. water en elektra
Mogelijkheid tot zonnepanelen plaatsen op het dak
Gezamenlijke fietsenberging in de brandgang
Op korte afstand van winkelcentrum Helpman, scholen, kinderopvang en bushalte
Uitvalswegen A 28 en A 7 op 5 autominuten
Lees meer
Kenmerken
- Aantal kamers: 4
- Woonoppervlakte: 121 m²
- Perceeloppervlakte: 0 m²
- Inhoud: 446 m³
- Bouwjaar: 1935
- Energielabel: C
Media
Downloads
energielabel
Omschrijving
Charmante jaren ’30 bovenwoning met dakterras in de geliefde wijk HelpmanPrachtig op een hoek gelegen bevindt zich deze sfeervolle jaren ’30 bovenwoning uit 1935. De woning beschikt over een royaal en prettige woonplattegrond en is de afgelopen jaren met zorg bewoond en gemoderniseerd. Zo is de keuken in 2020 vernieuwd, boven een extra toilet gerealiseerd en is het dak in 2021 vervangen, waarbij direct een heerlijk dakterras is gerealiseerd!
Via de entree met trapopgang bereikt u de indrukwekkende woonkamer. Deze is ruim, licht en stijlvol en valt direct op door de unieke glas in lood erker, de fraai geornamenteerde hoge plafonds en de elegante visgraat parketvloer. Op deze woonlaag bevindt zich tevens de moderne keuken met toegang tot het balkon, een fijne plek voor een kop koffie in de ochtendzon. Op de verdieping bevinden zich drie slaapkamers, waarvan twee ruim bemeten. Daarnaast is er een nette en verzorgde badkamer aanwezig, voorzien van een inloopdouche en een vaste wastafel. Een vaste trap geeft toegang tot het dakterras. Een heerlijke plek waar u met een prachtig uitzicht over de wijk kunt genieten van de zon en de buitenlucht.
De ligging is ideaal. Winkels, restaurants, sportvoorzieningen, scholen en het zwembad liggen op loopafstand. Met de fiets bent u binnen vijftien minuten op de Grote Markt in het bruisende centrum van Groningen. Ook de uitvalswegen A7 en A28 zijn snel en eenvoudig bereikbaar.
Kortom: een karakteristieke en sfeervolle bovenwoning met uniek dakterras!
INDELING:
Begane grond:
Entree met trapopgang.
Eerste verdieping:
Overloop met toilet, prachtige, ruime, lichte en stijlvolle woonkamer (ca. 44 m² inclusief studeerkamer) met unieke glas-in-lood erker, fraaie geornamenteerde hoge plafonds en een visgraat parketvloer. Een moderne keuken (2020) voorzien van diverse inbouwapparatuur en met toegang tot het balkon op westen.
Tweede verdieping:
Overloop, drie mooie slaapkamers van 18, 18 en 8 m², waarvan de 2 grootste met vaste kasten, verzorgde badkamer met ruime inloopdouche en wastafel, separaat toilet.
BIJZONDERHEDEN:
Bouwjaar: 1935
Energielabel: C
Woonoppervlak: ca. 121 m²
Instapklare karakteristieke jaren ‘30 woning
Voorzien van een Cv-combiketel (2020)
Alle ramen behalve de erker zijn voorzien van HR++
Dak is volledig vernieuwd en dakterras gerealiseerd (2021)
Veel privacy op het dakterras en is met vergunning aangelegd incl. water en elektra
Mogelijkheid tot zonnepanelen plaatsen op het dak
Gezamenlijke fietsenberging in de brandgang
Op korte afstand van winkelcentrum Helpman, scholen, kinderopvang en bushalte
Uitvalswegen A 28 en A 7 op 5 autominuten
Kenmerken
Overdracht
- Vraagprijs
- € 450.000 k.k.
- Status
- Verkocht
- Aanvaarding
- In Overleg
Bouw
- Type woning
- -
- Soort Bouw
- Bestaande Bouw
- Bouwjaar
- 1935
- Daktype
- Plat Dak
Oppervlakte en Inhoud
- Woonoppervlakte
- 121 m²
- Externe Bergruimte
- 0 m²
- Perceel
- 6699 m²
- Totale kadastrale oppervlakte
- 0 m²
- Inhoud
- 446 m³
Indeling
- Aantal kamers
- 4
- Badkamer(s) voorzieningen
- Woonlagen
- 1
Energie
- Energielabel
- C
- Isolatievormen
- Dakisolatie, Grotendeels Dubbelglas
- Verwarming
- Cv Ketel
- Warmwater
- Cv Ketel
- Type CV Ketel
- Calente Ace 28c
Kadastrale gegevens
- Oppervlakte Kadastraal
- 0 m²
- Omvang Kadastraal
- Appartementsrecht Of Complex
Buitenruimte
- Liggingen
- Aan Rustige Weg, In Woonwijk
- Tuin
- Geen Tuin
- Locatie
- -
Bergruimte
- Schuur/Berging
- -
Parkeergelegenheid
- Parkeergelegenheid
- Betaald Parkeren, Parkeervergunningen
Garage
- Soort(en) Garage
- Geen Garage
- Voorzieningen Garage
- -
- Capaciteit Garage
Media
Buurtinfo
Downloads
energielabel
Ken uw buurt
De Sitterstraat 11 a,
9721 ET, Groningen
Voorzieningen in de buurt
Buurtstatistieken
Hypotheekgesprek aanvragen
Plan uw bezichtiging
Maak gebruik van ons planningsplatform of download de brochure voor meer informatie.