| OVERDRACHT | |
| Vraagprijs | € 945.000 |
| Status | Verkocht |
| Aanvaarding | In overleg |
| BOUW | |
| Type | Bungalow |
| Soort Bouw | Bestaande bouw |
| Bouwjaar | 1972 |
| Daktype | Zadeldak |
| OPPERVLAKTE EN INHOUD | |
| Woonoppervlakte | 284 m2 |
| Externe Bergruimte | 77 m2 |
| Perceel | 219 220 |
| Perceel Oppervlakte | 4955 m2 |
| Inhoud | 1344 m2 |
| INDELING | |
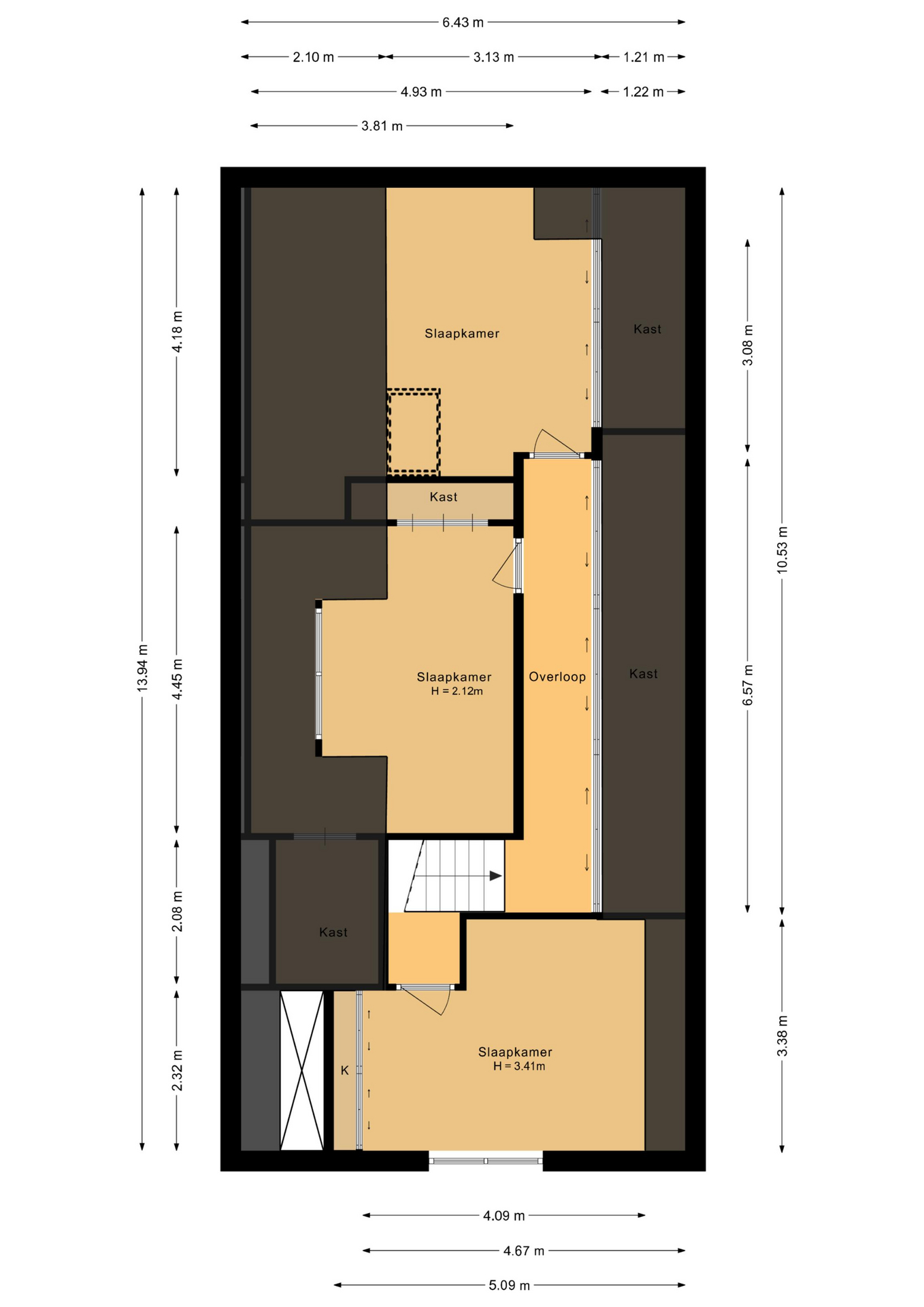
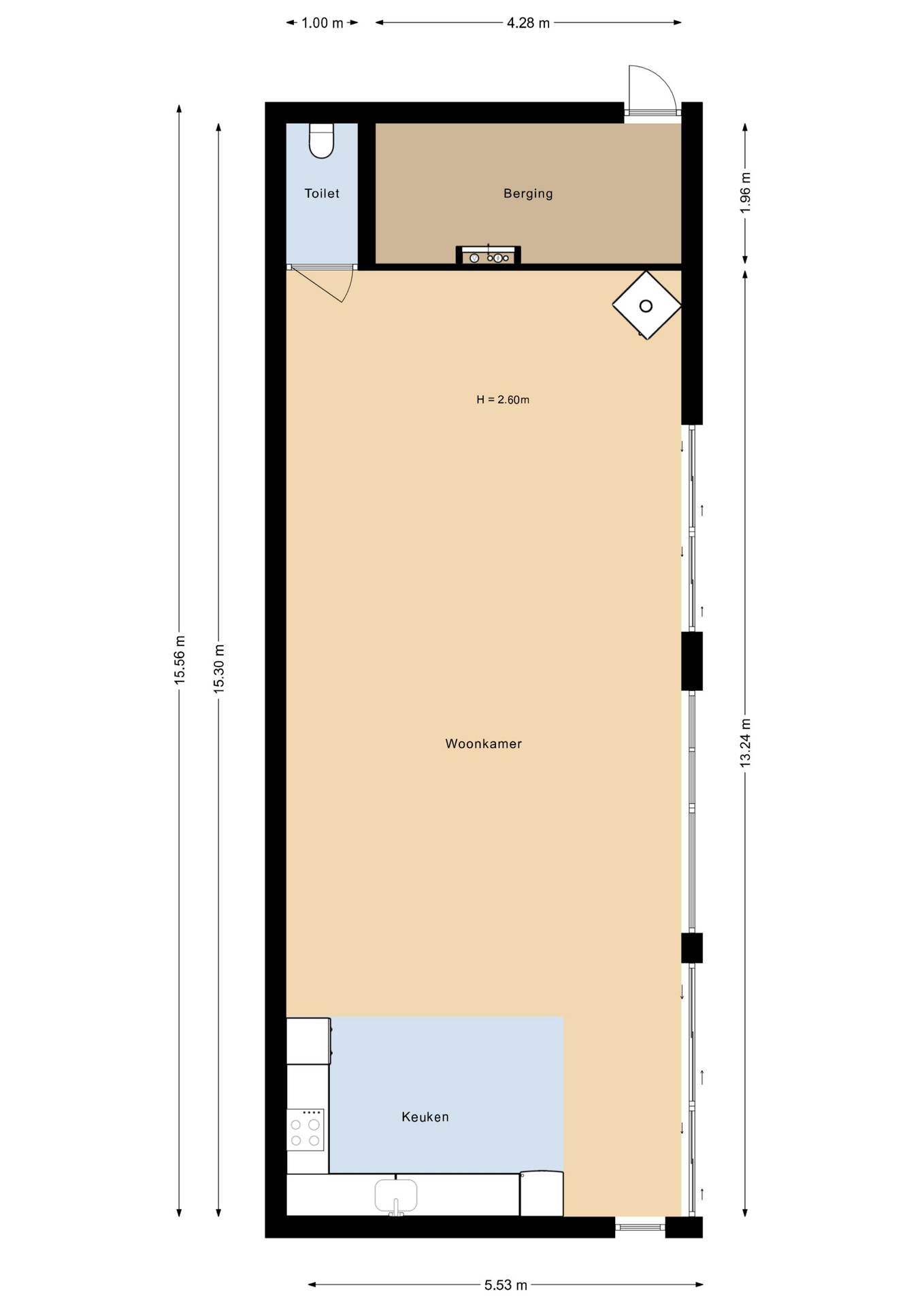
| Aantal Kamers | 5 (4 Slaapkamers) |
| Badkamer(s) voorzieningen | Douche Wastafel |
| Woonlagen | 2 |
| ENERGIE | |
| Energielabel | A |
| Isolatievormen | Dakisolatie Muurisolatie Vloerisolatie Hr glas |
| Verwarming | Cv ketel Vloerverwarming gedeeltelijk Houtkachel |
| Warmwater | Cv ketel |
| Type CV Ketel | Intergas (Eigendom) |
| KADASTRALE GEGEVENS | |
| Oppervlakte | 4955 m2 |
| Omvang | Geheel perceel Geheel perceel |
| BUITENRUIMTE | |
| Liggingen | Beschutte ligging Landelijk gelegen |
| Tuin | Achtertuin Voortuin Zijtuin |
| BERGRUIMTE | |
| Schuur/Berging | Vrijstaand steen |
| PARKEERGELEGENHEID | |
| Parkeergelegenheid | Op eigen terrein |
| GARAGE | |
| Soort(en) Garage | Geen garage |
