Kampstraat 32
9463 PV, Eext
€ 495.000 k.k.
Omschrijving
Vrijstaand wonen op een ruim perceel met een prachtig uitzicht op groen en rust om je heen.
Aan de geliefde Kampstraat, op een prachtige plek aan de rand van het karakteristieke dorp Eext, staat deze sfeervolle vrijstaande woning met een royale tuin en volop privacy. Een ideale gezinswoning met drie volwaardige slaapkamers op de verdieping, een lichte woonkamer en een groene leefomgeving waar je direct een gevoel van vrijheid ervaart.
Wonen in het groen – mét alle voorzieningen dichtbij
De woning ligt bijzonder fraai: aan de dorpsrand, met vrij uitzicht en omgeven door volwassen beplanting. De tuin is ruim opgezet en biedt meerdere zitplekken, zowel in de zon als in de schaduw. Een heerlijke plek om te genieten van rust, ruimte en de natuur.
Sfeervolle leefruimtes
Binnen komt de lichtinval direct op je af. De woonkamer bevindt zich aan de voorzijde van het huis met uitzicht over één van de vele brinken van Eext. Je bent omgeven door de vele volwassen eikenbomen gecombineerd met het vrije uitzicht over de landerijen naar het voorzieningrijke dorp Gieten. Aan de achterzijde van de woning bevindt zich de woonkeuken met doorloop naar de achterhal alwaar zich ook de c.v. ketel bevindt.
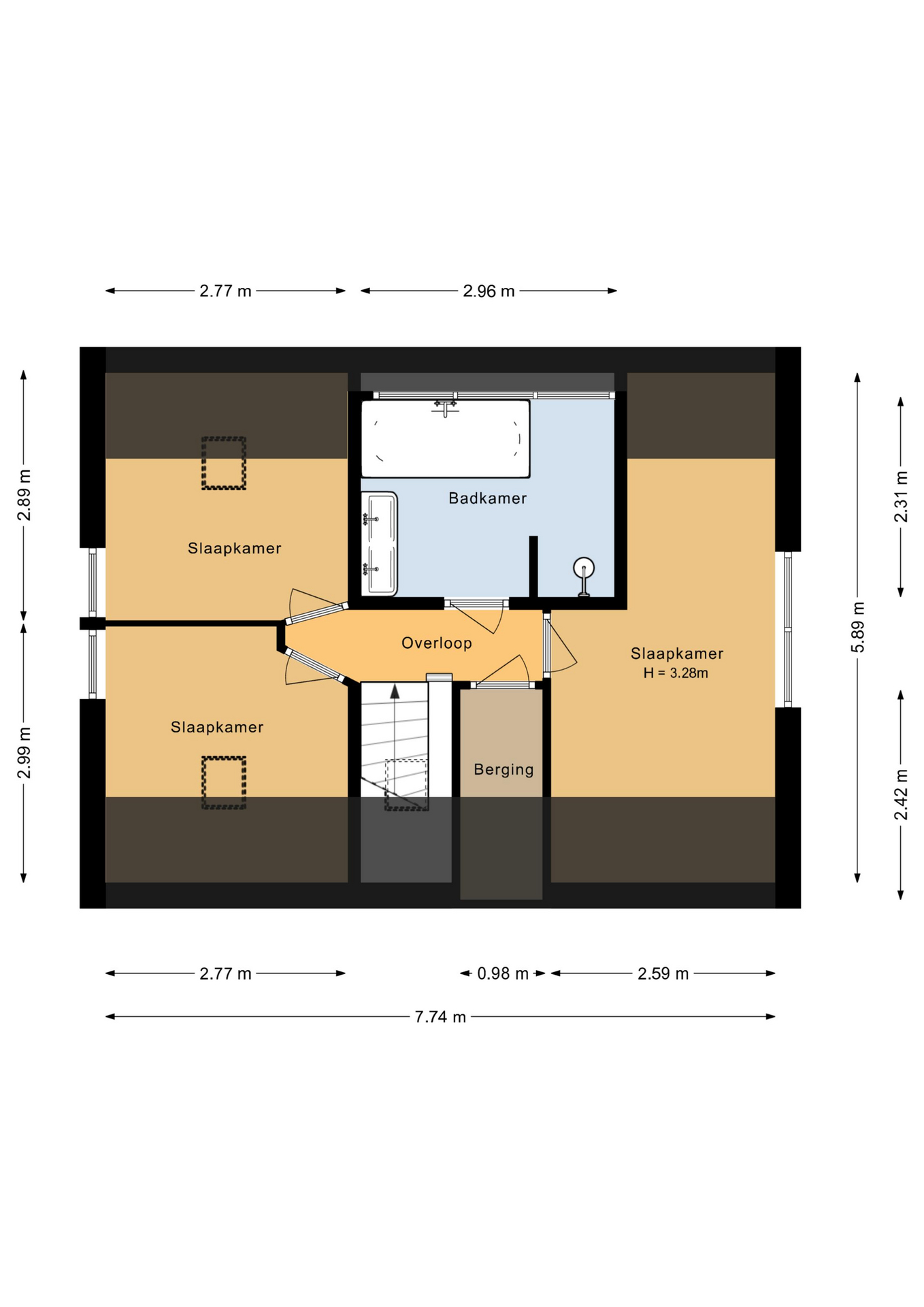
Op de eerste verdieping bevinden zich drie comfortabele slaapkamers, ideaal voor gezinnen of voor wie behoefte heeft aan een werk- of hobbyruimte. Dankzij de grote dakkapel ontstaat is een riante badkamer met ligbad, inloopdouche en dubbele wastafel ontstaan.
De woning ligt op een prachtig perceel van maar liefst 688 m2 grond. Aan de voorzijde bevindt zich een oprit om meerdere auto’s op eigen terrein te parkeren. De zijtuin grenst aan de lommerrijke brink en aan de achterzijde bevindt zich de zeer diepe achtertuin met vijverpartij en een zeer fraai gebouwde overkapping (2024) met betonvloer, naastgelegen berging en een prachtig uitzicht over de ijsbaan, landerijen en een veelbezocht ooievaarsnest.
Het dorp Eext is geliefd onder natuurliefhebbers en fijnproevers daar er veel horeca in het dorp aanwezig is. Wat dacht u van landgoedhotel Rikus, het dorpscafé Homan of de charmante herberg Bij Hilma. Bovendien is het vermeldenswaardig dat Eext een buurtsupermarkt, een zeer fijne kinderopvang en een basisschool heeft. Eext ligt centraal in de driehoek van Gieten, Annen en Rolde. Deze dorpen hebben allen een zeer breed voorzieningenniveau. Vanuit zowel Gieten als Annen bent u eenvoudig op de N34 en N33 waardoor ook de steden Assen, Groningen en Emmen eenvoudig aan te rijden zijn.
Waarom Kampstraat 32?
• Vrijstaande woning op een schitterende locatie
• Drie slaapkamers op de verdieping
• Royale tuin met volop privacy
• Rustig gelegen aan de rand van het dorp
• Op korte afstand van voorzieningen, natuurgebieden en uitvalswegen
Kortom: een prettige en ruime gezinswoning op één van de mooiste plekken van Eext, waar dagelijks genieten van rust en groen vanzelfsprekend is.
Aan de geliefde Kampstraat, op een prachtige plek aan de rand van het karakteristieke dorp Eext, staat deze sfeervolle vrijstaande woning met een royale tuin en volop privacy. Een ideale gezinswoning met drie volwaardige slaapkamers op de verdieping, een lichte woonkamer en een groene leefomgeving waar je direct een gevoel van vrijheid ervaart.
Wonen in het groen – mét alle voorzieningen dichtbij
De woning ligt bijzonder fraai: aan de dorpsrand, met vrij uitzicht en omgeven door volwassen beplanting. De tuin is ruim opgezet en biedt meerdere zitplekken, zowel in de zon als in de schaduw. Een heerlijke plek om te genieten van rust, ruimte en de natuur.
Sfeervolle leefruimtes
Binnen komt de lichtinval direct op je af. De woonkamer bevindt zich aan de voorzijde van het huis met uitzicht over één van de vele brinken van Eext. Je bent omgeven door de vele volwassen eikenbomen gecombineerd met het vrije uitzicht over de landerijen naar het voorzieningrijke dorp Gieten. Aan de achterzijde van de woning bevindt zich de woonkeuken met doorloop naar de achterhal alwaar zich ook de c.v. ketel bevindt.
Op de eerste verdieping bevinden zich drie comfortabele slaapkamers, ideaal voor gezinnen of voor wie behoefte heeft aan een werk- of hobbyruimte. Dankzij de grote dakkapel ontstaat is een riante badkamer met ligbad, inloopdouche en dubbele wastafel ontstaan.
De woning ligt op een prachtig perceel van maar liefst 688 m2 grond. Aan de voorzijde bevindt zich een oprit om meerdere auto’s op eigen terrein te parkeren. De zijtuin grenst aan de lommerrijke brink en aan de achterzijde bevindt zich de zeer diepe achtertuin met vijverpartij en een zeer fraai gebouwde overkapping (2024) met betonvloer, naastgelegen berging en een prachtig uitzicht over de ijsbaan, landerijen en een veelbezocht ooievaarsnest.
Het dorp Eext is geliefd onder natuurliefhebbers en fijnproevers daar er veel horeca in het dorp aanwezig is. Wat dacht u van landgoedhotel Rikus, het dorpscafé Homan of de charmante herberg Bij Hilma. Bovendien is het vermeldenswaardig dat Eext een buurtsupermarkt, een zeer fijne kinderopvang en een basisschool heeft. Eext ligt centraal in de driehoek van Gieten, Annen en Rolde. Deze dorpen hebben allen een zeer breed voorzieningenniveau. Vanuit zowel Gieten als Annen bent u eenvoudig op de N34 en N33 waardoor ook de steden Assen, Groningen en Emmen eenvoudig aan te rijden zijn.
Waarom Kampstraat 32?
• Vrijstaande woning op een schitterende locatie
• Drie slaapkamers op de verdieping
• Royale tuin met volop privacy
• Rustig gelegen aan de rand van het dorp
• Op korte afstand van voorzieningen, natuurgebieden en uitvalswegen
Kortom: een prettige en ruime gezinswoning op één van de mooiste plekken van Eext, waar dagelijks genieten van rust en groen vanzelfsprekend is.
Lees meer
Kenmerken
- Aantal kamers: 4
- Woonoppervlakte: 84 m²
- Perceeloppervlakte: 688 m²
- Inhoud: 344 m³
- Bouwjaar: 1968
- Energielabel: C
Media
Downloads
Brochure
Omschrijving
Vrijstaand wonen op een ruim perceel met een prachtig uitzicht op groen en rust om je heen.Aan de geliefde Kampstraat, op een prachtige plek aan de rand van het karakteristieke dorp Eext, staat deze sfeervolle vrijstaande woning met een royale tuin en volop privacy. Een ideale gezinswoning met drie volwaardige slaapkamers op de verdieping, een lichte woonkamer en een groene leefomgeving waar je direct een gevoel van vrijheid ervaart.
Wonen in het groen – mét alle voorzieningen dichtbij
De woning ligt bijzonder fraai: aan de dorpsrand, met vrij uitzicht en omgeven door volwassen beplanting. De tuin is ruim opgezet en biedt meerdere zitplekken, zowel in de zon als in de schaduw. Een heerlijke plek om te genieten van rust, ruimte en de natuur.
Sfeervolle leefruimtes
Binnen komt de lichtinval direct op je af. De woonkamer bevindt zich aan de voorzijde van het huis met uitzicht over één van de vele brinken van Eext. Je bent omgeven door de vele volwassen eikenbomen gecombineerd met het vrije uitzicht over de landerijen naar het voorzieningrijke dorp Gieten. Aan de achterzijde van de woning bevindt zich de woonkeuken met doorloop naar de achterhal alwaar zich ook de c.v. ketel bevindt.
Op de eerste verdieping bevinden zich drie comfortabele slaapkamers, ideaal voor gezinnen of voor wie behoefte heeft aan een werk- of hobbyruimte. Dankzij de grote dakkapel ontstaat is een riante badkamer met ligbad, inloopdouche en dubbele wastafel ontstaan.
De woning ligt op een prachtig perceel van maar liefst 688 m2 grond. Aan de voorzijde bevindt zich een oprit om meerdere auto’s op eigen terrein te parkeren. De zijtuin grenst aan de lommerrijke brink en aan de achterzijde bevindt zich de zeer diepe achtertuin met vijverpartij en een zeer fraai gebouwde overkapping (2024) met betonvloer, naastgelegen berging en een prachtig uitzicht over de ijsbaan, landerijen en een veelbezocht ooievaarsnest.
Het dorp Eext is geliefd onder natuurliefhebbers en fijnproevers daar er veel horeca in het dorp aanwezig is. Wat dacht u van landgoedhotel Rikus, het dorpscafé Homan of de charmante herberg Bij Hilma. Bovendien is het vermeldenswaardig dat Eext een buurtsupermarkt, een zeer fijne kinderopvang en een basisschool heeft. Eext ligt centraal in de driehoek van Gieten, Annen en Rolde. Deze dorpen hebben allen een zeer breed voorzieningenniveau. Vanuit zowel Gieten als Annen bent u eenvoudig op de N34 en N33 waardoor ook de steden Assen, Groningen en Emmen eenvoudig aan te rijden zijn.
Waarom Kampstraat 32?
• Vrijstaande woning op een schitterende locatie
• Drie slaapkamers op de verdieping
• Royale tuin met volop privacy
• Rustig gelegen aan de rand van het dorp
• Op korte afstand van voorzieningen, natuurgebieden en uitvalswegen
Kortom: een prettige en ruime gezinswoning op één van de mooiste plekken van Eext, waar dagelijks genieten van rust en groen vanzelfsprekend is.
Kenmerken
Overdracht
- Vraagprijs
- € 495.000 k.k.
- Status
- Verkocht
- Aanvaarding
- In Overleg
Bouw
- Type woning
- Eengezinswoning
- Soort Bouw
- Bestaande Bouw
- Bouwjaar
- 1968
- Daktype
- Zadeldak
Oppervlakte en Inhoud
- Woonoppervlakte
- 84 m²
- Externe Bergruimte
- 6 m²
- Perceel
- 554 m²
- Totale kadastrale oppervlakte
- 688 m²
- Inhoud
- 344 m³
Indeling
- Aantal kamers
- 4
- Badkamer(s) voorzieningen
- Woonlagen
- 1
Energie
- Energielabel
- C
- Isolatievormen
- Muurisolatie, Dubbel Glas
- Verwarming
- Cv Ketel, Vloerverwarming Gedeeltelijk
- Warmwater
- Cv Ketel
- Type CV Ketel
- Intergas Hre
Kadastrale gegevens
- Oppervlakte Kadastraal
- 688 m²
- Omvang Kadastraal
- Geheel Perceel
Buitenruimte
- Liggingen
- Aan Rustige Weg, In Woonwijk, Vrij Uitzicht, Beschutte Ligging, Landelijk Gelegen
- Tuin
- Tuin Rondom
- Locatie
- -
Bergruimte
- Schuur/Berging
- Vrijstaand Hout
Parkeergelegenheid
- Parkeergelegenheid
- Op Eigen Terrein
Garage
- Soort(en) Garage
- Garage Mogelijk
- Voorzieningen Garage
- -
- Capaciteit Garage
Media
Buurtinfo
Downloads
Brochure
Ken uw buurt
Kampstraat 32,
9463 PV, Eext
Voorzieningen in de buurt
Buurtstatistieken
Hypotheekgesprek aanvragen