Koninginnelaan 15
9717 BM, Groningen
€ 995.000 k.k.
Omschrijving
Karakteristiek halfvrijstaand herenhuis met 6 slaapkamers, tuin én oprit op toplocatie nabij het Noorderplantsoen
Aan de geliefde Koninginnelaan in Groningen staat dit prachtige, halfvrijstaande herenhuis met een royale uitgebouwde living, maar liefst zes slaapkamers, twee badkamers en een besloten groene tuin met vrijstaande stenen berging. Deze karaktervolle woning combineert authentieke details met hedendaags wooncomfort en is gelegen op een steenworp afstand van het Noorderplantsoen en het bruisende stadscentrum.
Het betreft de zuidelijke helft van het pand, wat zorgt voor een uitzonderlijk prettige lichtinval gedurende de hele dag. De woning beschikt over zowel een achter- als zijtuin, waardoor er altijd een fijne plek in de zon of schaduw te vinden is. Daarnaast is er een ruime oprit, wat uniek is voor deze centrale locatie. Bij binnenkomst valt direct de charmante uitstraling op, met diverse authentieke elementen zoals hoge plafonds en originele details. Door de uitbouw aan de achterzijde van de woning is een riante woonkeuken ontstaan met openslaande deuren naar de achtertuin.De woning beschikt over 6 volwaardige slaapkamers en 2 badkamers waardoor de woning ideaal is voor een groot gezin en werken aan huis.
De woning is voorzien van de bouwkwaliteit waar de jaren ’30 woningen bekend om staan. De huidige eigenaren hebben de muren, vloeren en het dak geïsoleerd en tevens is de woning voorzien van een moderne C.V. ketel waardoor de woning een energielabel-B heeft gekregen.
Buitenruimte:
De combinatie van een achtertuin, zijtuin én oprit maakt deze woning bijzonder veelzijdig. Hier geniet u van rust en privacy, midden in de stad.
Ligging:
De Koninginnelaan is een van de meest gewilde straten van Groningen: rustig, groen en toch op loopafstand van het Noorderplantsoen, winkels, horeca en het stadscentrum. Ook scholen en uitvalswegen zijn uitstekend bereikbaar.
Indeling:
Begane grond:
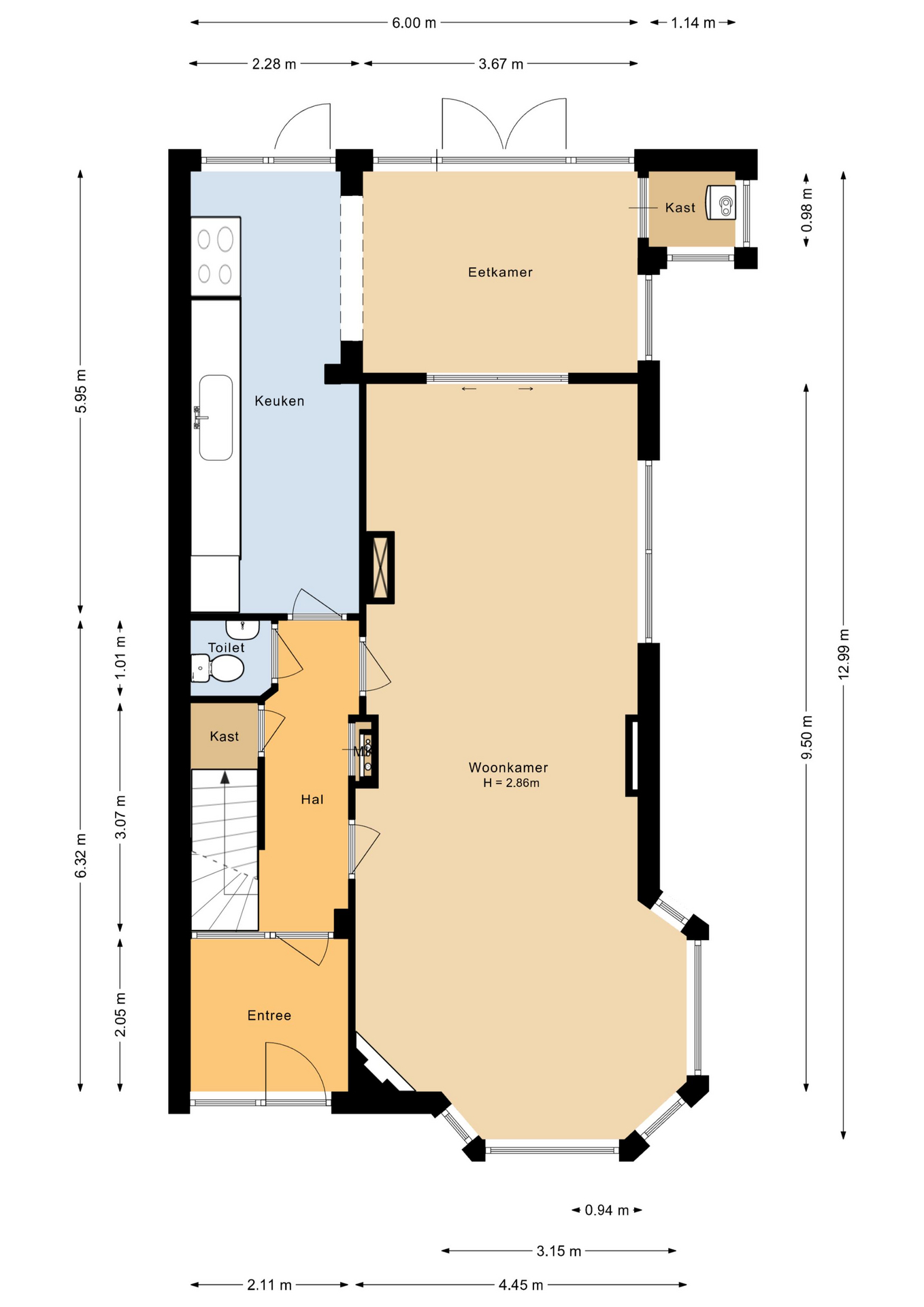
Entree via vestibule, hal met trapopgang naar de 1e verdieping, toilet met fonteintje, keldertoegang, woonkamer met zeeën van lichtinval, woonkeuken met openslaande deuren naar de achtertuin.
1e verdieping:
Overloop, 3 slaapkamers en een badkamer voorzien van douche, toilet en wastafel. De ouderslaapkamer heeft openslaande deuren naar het aan de achterzijde gelegen balkon.
2e verdieping:
Overloop, 3 slaapkamers, 2e badkamer voorzien van ligbad, separate douche, toilet en wastafel.
Zolder: boven de 2e verdieping is een ruime vliering/bergzolder bereikbaar via een vlizotrap voor extra opslagruimte.
Kortom: een uniek, licht en ruim gezinshuis op een toplocatie, waar karakter en comfort perfect samenkomen.
Bijzonderheden:
Toplocatie op een steenworp van het Noorderplantsoen én stadscentrum
Energielabel B
Woonoppervlak: ca. 182 m2
Perceeloppervlak: 266 m2
6 slaapkamers
Goed na-geïsoleerd
Aan de geliefde Koninginnelaan in Groningen staat dit prachtige, halfvrijstaande herenhuis met een royale uitgebouwde living, maar liefst zes slaapkamers, twee badkamers en een besloten groene tuin met vrijstaande stenen berging. Deze karaktervolle woning combineert authentieke details met hedendaags wooncomfort en is gelegen op een steenworp afstand van het Noorderplantsoen en het bruisende stadscentrum.
Het betreft de zuidelijke helft van het pand, wat zorgt voor een uitzonderlijk prettige lichtinval gedurende de hele dag. De woning beschikt over zowel een achter- als zijtuin, waardoor er altijd een fijne plek in de zon of schaduw te vinden is. Daarnaast is er een ruime oprit, wat uniek is voor deze centrale locatie. Bij binnenkomst valt direct de charmante uitstraling op, met diverse authentieke elementen zoals hoge plafonds en originele details. Door de uitbouw aan de achterzijde van de woning is een riante woonkeuken ontstaan met openslaande deuren naar de achtertuin.De woning beschikt over 6 volwaardige slaapkamers en 2 badkamers waardoor de woning ideaal is voor een groot gezin en werken aan huis.
De woning is voorzien van de bouwkwaliteit waar de jaren ’30 woningen bekend om staan. De huidige eigenaren hebben de muren, vloeren en het dak geïsoleerd en tevens is de woning voorzien van een moderne C.V. ketel waardoor de woning een energielabel-B heeft gekregen.
Buitenruimte:
De combinatie van een achtertuin, zijtuin én oprit maakt deze woning bijzonder veelzijdig. Hier geniet u van rust en privacy, midden in de stad.
Ligging:
De Koninginnelaan is een van de meest gewilde straten van Groningen: rustig, groen en toch op loopafstand van het Noorderplantsoen, winkels, horeca en het stadscentrum. Ook scholen en uitvalswegen zijn uitstekend bereikbaar.
Indeling:
Begane grond:
Entree via vestibule, hal met trapopgang naar de 1e verdieping, toilet met fonteintje, keldertoegang, woonkamer met zeeën van lichtinval, woonkeuken met openslaande deuren naar de achtertuin.
1e verdieping:
Overloop, 3 slaapkamers en een badkamer voorzien van douche, toilet en wastafel. De ouderslaapkamer heeft openslaande deuren naar het aan de achterzijde gelegen balkon.
2e verdieping:
Overloop, 3 slaapkamers, 2e badkamer voorzien van ligbad, separate douche, toilet en wastafel.
Zolder: boven de 2e verdieping is een ruime vliering/bergzolder bereikbaar via een vlizotrap voor extra opslagruimte.
Kortom: een uniek, licht en ruim gezinshuis op een toplocatie, waar karakter en comfort perfect samenkomen.
Bijzonderheden:
Toplocatie op een steenworp van het Noorderplantsoen én stadscentrum
Energielabel B
Woonoppervlak: ca. 182 m2
Perceeloppervlak: 266 m2
6 slaapkamers
Goed na-geïsoleerd
Lees meer
Kenmerken
- Aantal kamers: 7
- Woonoppervlakte: 180 m²
- Perceeloppervlakte: 266 m²
- Inhoud: 682 m³
- Bouwjaar: 1929
- Energielabel: B
Media
Downloads
Brochure
Omschrijving
Karakteristiek halfvrijstaand herenhuis met 6 slaapkamers, tuin én oprit op toplocatie nabij het NoorderplantsoenAan de geliefde Koninginnelaan in Groningen staat dit prachtige, halfvrijstaande herenhuis met een royale uitgebouwde living, maar liefst zes slaapkamers, twee badkamers en een besloten groene tuin met vrijstaande stenen berging. Deze karaktervolle woning combineert authentieke details met hedendaags wooncomfort en is gelegen op een steenworp afstand van het Noorderplantsoen en het bruisende stadscentrum.
Het betreft de zuidelijke helft van het pand, wat zorgt voor een uitzonderlijk prettige lichtinval gedurende de hele dag. De woning beschikt over zowel een achter- als zijtuin, waardoor er altijd een fijne plek in de zon of schaduw te vinden is. Daarnaast is er een ruime oprit, wat uniek is voor deze centrale locatie. Bij binnenkomst valt direct de charmante uitstraling op, met diverse authentieke elementen zoals hoge plafonds en originele details. Door de uitbouw aan de achterzijde van de woning is een riante woonkeuken ontstaan met openslaande deuren naar de achtertuin.De woning beschikt over 6 volwaardige slaapkamers en 2 badkamers waardoor de woning ideaal is voor een groot gezin en werken aan huis.
De woning is voorzien van de bouwkwaliteit waar de jaren ’30 woningen bekend om staan. De huidige eigenaren hebben de muren, vloeren en het dak geïsoleerd en tevens is de woning voorzien van een moderne C.V. ketel waardoor de woning een energielabel-B heeft gekregen.
Buitenruimte:
De combinatie van een achtertuin, zijtuin én oprit maakt deze woning bijzonder veelzijdig. Hier geniet u van rust en privacy, midden in de stad.
Ligging:
De Koninginnelaan is een van de meest gewilde straten van Groningen: rustig, groen en toch op loopafstand van het Noorderplantsoen, winkels, horeca en het stadscentrum. Ook scholen en uitvalswegen zijn uitstekend bereikbaar.
Indeling:
Begane grond:
Entree via vestibule, hal met trapopgang naar de 1e verdieping, toilet met fonteintje, keldertoegang, woonkamer met zeeën van lichtinval, woonkeuken met openslaande deuren naar de achtertuin.
1e verdieping:
Overloop, 3 slaapkamers en een badkamer voorzien van douche, toilet en wastafel. De ouderslaapkamer heeft openslaande deuren naar het aan de achterzijde gelegen balkon.
2e verdieping:
Overloop, 3 slaapkamers, 2e badkamer voorzien van ligbad, separate douche, toilet en wastafel.
Zolder: boven de 2e verdieping is een ruime vliering/bergzolder bereikbaar via een vlizotrap voor extra opslagruimte.
Kortom: een uniek, licht en ruim gezinshuis op een toplocatie, waar karakter en comfort perfect samenkomen.
Bijzonderheden:
Toplocatie op een steenworp van het Noorderplantsoen én stadscentrum
Energielabel B
Woonoppervlak: ca. 182 m2
Perceeloppervlak: 266 m2
6 slaapkamers
Goed na-geïsoleerd
Kenmerken
Overdracht
- Vraagprijs
- € 995.000 k.k.
- Status
- Beschikbaar
- Aanvaarding
- In Overleg
Bouw
- Type woning
- Herenhuis
- Soort Bouw
- Bestaande Bouw
- Bouwjaar
- 1929
- Daktype
- Schilddak
Oppervlakte en Inhoud
- Woonoppervlakte
- 180 m²
- Externe Bergruimte
- 8 m²
- Perceel
- 5930 m²
- Totale kadastrale oppervlakte
- 266 m²
- Inhoud
- 682 m³
Indeling
- Aantal kamers
- 7
- Badkamer(s) voorzieningen
- Toilet, Douche, Wastafel, Ligbad, Wasmachineaansluiting
- Woonlagen
- 1
Energie
- Energielabel
- B
- Isolatievormen
- Dakisolatie, Muurisolatie, Vloerisolatie, Hr Glas
- Verwarming
- Cv Ketel
- Warmwater
- Cv Ketel
- Type CV Ketel
Kadastrale gegevens
- Oppervlakte Kadastraal
- 266 m²
- Omvang Kadastraal
- Geheel Perceel
Buitenruimte
- Liggingen
- Aan Park, Aan Rustige Weg, In Woonwijk, Beschutte Ligging
- Tuin
- Achtertuin, Voortuin, Zijtuin
- Locatie
- -
Bergruimte
- Schuur/Berging
- Vrijstaand Steen
Parkeergelegenheid
- Parkeergelegenheid
- Op Eigen Terrein
Garage
- Soort(en) Garage
- Geen Garage
- Voorzieningen Garage
- -
- Capaciteit Garage
Media
Buurtinfo
Downloads
Brochure
Ken uw buurt
Koninginnelaan 15,
9717 BM, Groningen
Voorzieningen in de buurt
Buurtstatistieken
Hypotheekgesprek aanvragen