Marijkelaan 5
9471 EG, Zuidlaren
€ 545.000 k.k.
Omschrijving
Op een fraaie en rustige locatie, nabij het centrum van Zuidlaren gelegen riant uitgebouwd vrijstaand woonhuis met een tuin rondom, inpandige berging en een ruime oprit.
Deze lichte gezinswoning ligt op een aantrekkelijke locatie in Zuidlaren; de woning ligt nabij het Beatrixplein, op loopafstand van één van de brinken van Zuidlaren, aan de rand van het centrum en toch in de luwte. Op de fiets sta je bovendien binnen 5 minuten in het Noordlaarderbos!
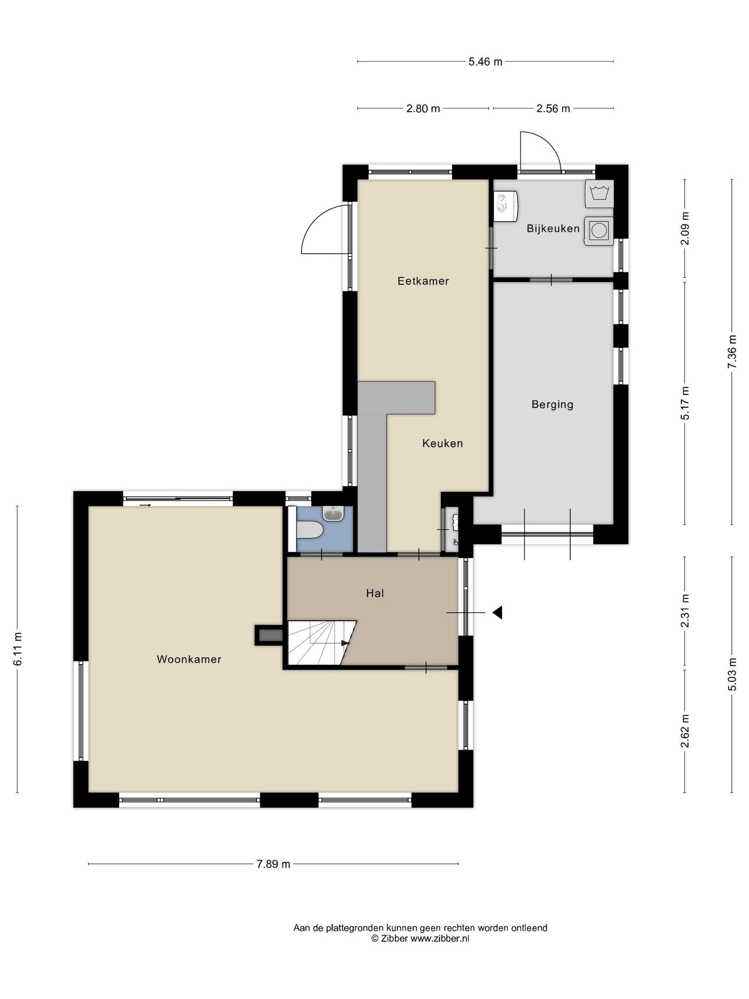
Marijkelaan 5 is aan de achterzijde fors uitgebouwd waardoor een praktisch woonplattegrond is ontstaan. Dit maakt dat het woonhuis met een knusse woonkamer en een fijne leefkeuken een perfecte gezinswoning is! Op de verdieping bevindt zich een badkamer, separaat toilet en met maar liefst vier slaapkamers (mogelijkheid tot 5). Het huis biedt voldoende leefruimte voor het hele gezin. De inpandige berging op de begane grond biedt u ook de mogelijkheid om eenvoudig een kantoor aan huis te realiseren, hetgeen de woning ook nog eens uiterst geschikt maakt voor het werken aan huis. Bovendien kunt u in de besloten tuin rondom het huis genieten van volledige privacy en rust en de heerlijke tuinoverkapping maakt het buitenleven hier compleet. De inpandige berging kan op eenvoudige wijze getransformeerd worden tot werk- c.q. slaapkamer op de begane grond.
Het gezellige en bruisende centrum van Zuidlaren met alle overige voorzieningen is met de fiets binnen 5 minuten op korte afstand snel te bereiken. Het gewilde brinkdorp Zuidlaren is ideaal gelegen tussen Groningen en Assen en bevindt zich ten opzichte van beide plaatsen op een korte afstand van circa 20 autominuten.
INDELING:
Begane grond:
Entree/hal met trapopgang, toilet met fonteintje, L-vormige woonkamer met pelletkachel en schuifpui naar de tuin, moderne keuken (2020) in landelijke stijl voorzien van diverse inbouwapparatuur en eetgedeelte, bijkeuken met witgoedaansluiting en cv-opstelling, berging. Vanuit zowel de keuken als de bijkeuken heeft u toegang tot de achtertuin. De pelletkachels zijn aangesloten op de c.v. ketel en verwarmen derhalve het hele huis mee.
Verdieping:
Overloop, 4 slaapkamers van ca. 25, 11, 9 en 7 m², waarvan de kleinste met toegang tot het balkon aan de voorzijde, badkamer met ligbad met whirlpool, douche en dubbele wastafel, separaat toilet.
Hierboven een bergvliering middels vlizotrap te bereiken.
BIJZONDERHEDEN:
Woonoppervlak: ca. 155 m²
Perceelgrootte: 330 m²
Voldoende kamers voor gezinsbewoning
Energielabel C
Woonkamer en de leefkeuken zijn voorzien van een pelletkachel
Uitgerust met 10 zonnepanelen
De buurt is rustig, groen en zeer geliefd
Op korte afstand van Staatsbossen en het centrum van Zuidlaren
Deze lichte gezinswoning ligt op een aantrekkelijke locatie in Zuidlaren; de woning ligt nabij het Beatrixplein, op loopafstand van één van de brinken van Zuidlaren, aan de rand van het centrum en toch in de luwte. Op de fiets sta je bovendien binnen 5 minuten in het Noordlaarderbos!
Marijkelaan 5 is aan de achterzijde fors uitgebouwd waardoor een praktisch woonplattegrond is ontstaan. Dit maakt dat het woonhuis met een knusse woonkamer en een fijne leefkeuken een perfecte gezinswoning is! Op de verdieping bevindt zich een badkamer, separaat toilet en met maar liefst vier slaapkamers (mogelijkheid tot 5). Het huis biedt voldoende leefruimte voor het hele gezin. De inpandige berging op de begane grond biedt u ook de mogelijkheid om eenvoudig een kantoor aan huis te realiseren, hetgeen de woning ook nog eens uiterst geschikt maakt voor het werken aan huis. Bovendien kunt u in de besloten tuin rondom het huis genieten van volledige privacy en rust en de heerlijke tuinoverkapping maakt het buitenleven hier compleet. De inpandige berging kan op eenvoudige wijze getransformeerd worden tot werk- c.q. slaapkamer op de begane grond.
Het gezellige en bruisende centrum van Zuidlaren met alle overige voorzieningen is met de fiets binnen 5 minuten op korte afstand snel te bereiken. Het gewilde brinkdorp Zuidlaren is ideaal gelegen tussen Groningen en Assen en bevindt zich ten opzichte van beide plaatsen op een korte afstand van circa 20 autominuten.
INDELING:
Begane grond:
Entree/hal met trapopgang, toilet met fonteintje, L-vormige woonkamer met pelletkachel en schuifpui naar de tuin, moderne keuken (2020) in landelijke stijl voorzien van diverse inbouwapparatuur en eetgedeelte, bijkeuken met witgoedaansluiting en cv-opstelling, berging. Vanuit zowel de keuken als de bijkeuken heeft u toegang tot de achtertuin. De pelletkachels zijn aangesloten op de c.v. ketel en verwarmen derhalve het hele huis mee.
Verdieping:
Overloop, 4 slaapkamers van ca. 25, 11, 9 en 7 m², waarvan de kleinste met toegang tot het balkon aan de voorzijde, badkamer met ligbad met whirlpool, douche en dubbele wastafel, separaat toilet.
Hierboven een bergvliering middels vlizotrap te bereiken.
BIJZONDERHEDEN:
Woonoppervlak: ca. 155 m²
Perceelgrootte: 330 m²
Voldoende kamers voor gezinsbewoning
Energielabel C
Woonkamer en de leefkeuken zijn voorzien van een pelletkachel
Uitgerust met 10 zonnepanelen
De buurt is rustig, groen en zeer geliefd
Op korte afstand van Staatsbossen en het centrum van Zuidlaren
Lees meer
Kenmerken
- Aantal kamers: 5
- Woonoppervlakte: 155 m²
- Perceeloppervlakte: 330 m²
- Inhoud: 500 m³
- Bouwjaar: 1961
- Energielabel: C
Media
Downloads
vragenlijst
Omschrijving
Op een fraaie en rustige locatie, nabij het centrum van Zuidlaren gelegen riant uitgebouwd vrijstaand woonhuis met een tuin rondom, inpandige berging en een ruime oprit.Deze lichte gezinswoning ligt op een aantrekkelijke locatie in Zuidlaren; de woning ligt nabij het Beatrixplein, op loopafstand van één van de brinken van Zuidlaren, aan de rand van het centrum en toch in de luwte. Op de fiets sta je bovendien binnen 5 minuten in het Noordlaarderbos!
Marijkelaan 5 is aan de achterzijde fors uitgebouwd waardoor een praktisch woonplattegrond is ontstaan. Dit maakt dat het woonhuis met een knusse woonkamer en een fijne leefkeuken een perfecte gezinswoning is! Op de verdieping bevindt zich een badkamer, separaat toilet en met maar liefst vier slaapkamers (mogelijkheid tot 5). Het huis biedt voldoende leefruimte voor het hele gezin. De inpandige berging op de begane grond biedt u ook de mogelijkheid om eenvoudig een kantoor aan huis te realiseren, hetgeen de woning ook nog eens uiterst geschikt maakt voor het werken aan huis. Bovendien kunt u in de besloten tuin rondom het huis genieten van volledige privacy en rust en de heerlijke tuinoverkapping maakt het buitenleven hier compleet. De inpandige berging kan op eenvoudige wijze getransformeerd worden tot werk- c.q. slaapkamer op de begane grond.
Het gezellige en bruisende centrum van Zuidlaren met alle overige voorzieningen is met de fiets binnen 5 minuten op korte afstand snel te bereiken. Het gewilde brinkdorp Zuidlaren is ideaal gelegen tussen Groningen en Assen en bevindt zich ten opzichte van beide plaatsen op een korte afstand van circa 20 autominuten.
INDELING:
Begane grond:
Entree/hal met trapopgang, toilet met fonteintje, L-vormige woonkamer met pelletkachel en schuifpui naar de tuin, moderne keuken (2020) in landelijke stijl voorzien van diverse inbouwapparatuur en eetgedeelte, bijkeuken met witgoedaansluiting en cv-opstelling, berging. Vanuit zowel de keuken als de bijkeuken heeft u toegang tot de achtertuin. De pelletkachels zijn aangesloten op de c.v. ketel en verwarmen derhalve het hele huis mee.
Verdieping:
Overloop, 4 slaapkamers van ca. 25, 11, 9 en 7 m², waarvan de kleinste met toegang tot het balkon aan de voorzijde, badkamer met ligbad met whirlpool, douche en dubbele wastafel, separaat toilet.
Hierboven een bergvliering middels vlizotrap te bereiken.
BIJZONDERHEDEN:
Woonoppervlak: ca. 155 m²
Perceelgrootte: 330 m²
Voldoende kamers voor gezinsbewoning
Energielabel C
Woonkamer en de leefkeuken zijn voorzien van een pelletkachel
Uitgerust met 10 zonnepanelen
De buurt is rustig, groen en zeer geliefd
Op korte afstand van Staatsbossen en het centrum van Zuidlaren
Kenmerken
Overdracht
- Vraagprijs
- € 545.000 k.k.
- Status
- Verkocht
- Aanvaarding
- In Overleg
Bouw
- Type woning
- Eengezinswoning
- Soort Bouw
- Bestaande Bouw
- Bouwjaar
- 1961
- Daktype
- Zadeldak
Oppervlakte en Inhoud
- Woonoppervlakte
- 155 m²
- Externe Bergruimte
- 5 m²
- Perceel
- 4431 m²
- Totale kadastrale oppervlakte
- 330 m²
- Inhoud
- 500 m³
Indeling
- Aantal kamers
- 5
- Badkamer(s) voorzieningen
- Woonlagen
- 1
Energie
- Energielabel
- C
- Isolatievormen
- Muurisolatie, Vloerisolatie, Grotendeels Dubbelglas
- Verwarming
- Cv Ketel, Pelletkachel
- Warmwater
- Cv Ketel
- Type CV Ketel
- Intergas
Kadastrale gegevens
- Oppervlakte Kadastraal
- 330 m²
- Omvang Kadastraal
- Geheel Perceel
Buitenruimte
- Liggingen
- Aan Rustige Weg, In Centrum, In Woonwijk
- Tuin
- Tuin Rondom
- Locatie
- -
Bergruimte
- Schuur/Berging
- Aangebouwd Hout
Parkeergelegenheid
- Parkeergelegenheid
- Openbaar Parkeren, Op Eigen Terrein
Garage
- Soort(en) Garage
- Inpandig
- Voorzieningen Garage
- Elektra
- Capaciteit Garage
- 1
Media
Buurtinfo
Downloads
vragenlijst
Ken uw buurt
Marijkelaan 5,
9471 EG, Zuidlaren
Voorzieningen in de buurt
Buurtstatistieken
Hypotheekgesprek aanvragen
Plan uw bezichtiging
Maak gebruik van ons planningsplatform of download de brochure voor meer informatie.