Middenstreek 7
9166 LL, Schiermonnikoog
€ 1.095.000 k.k.
Omschrijving
Modern eilanderhuis met verfijnde architectuur en hoogwaardige afwerking op een centrale locatie in het dorp
Beschut gelegen ten opzichte van de Reeweg en de Nieuwestreek, bevindt zich dit bijzondere en jonge eilanderhuis dat in een uitstekende staat van onderhoud verkeert. De woning is ontworpen als een eigentijdse interpretatie van de karakteristieke eilander bebouwing, waarbij architectuur, materiaalgebruik en detaillering op fraaie wijze samenkomen. Het geheel is gerealiseerd door een lokale aannemer, wat bijdraagt aan de authentieke uitstraling en kwaliteit.
Binnen wordt u verrast door de doordachte indeling en het hoge afwerkingsniveau. In elk detail is zichtbaar dat er met aandacht en visie is gewerkt. Zware binnendeuren met geïntegreerde scharnieren, in het glas verwerkte raambekleding, op afstand bedienbare dakramen en maatwerk kasten zorgen voor een verzorgde en comfortabele leefomgeving. De sfeervolle houtkachel en de luxe uitgevoerde keuken vormen het hart van de woning en dragen bij aan de warme en uitnodigende sfeer. De woning kenmerkt zich door openheid en ruimtelijkheid. In plaats van traditionele indelingen met meerdere afgesloten kamers is gekozen voor grote, vloeiende leefruimtes die op verschillende manieren te gebruiken zijn. Via de vide staat de verdieping in directe verbinding met de leefruimte beneden, terwijl de grote dakramen zorgen voor een aangename lichtinval. Indien gewenst is het mogelijk om de indeling aan te passen en extra kamers te realiseren.
De tuin is fraai aangelegd en gunstig op de zon gesitueerd. Een bijzonder element is de volledig wegschuifbare pui aan de achterzijde, waardoor binnen en buiten naadloos in elkaar overlopen en de tuin een verlengstuk van de woning vormt. Aan de overzijde, bereikbaar via een handgemaakt smeedijzeren hek, bevindt zich de overtuin met een recent gebouwde, volledig geïsoleerde schuur. Deze is voorzien van een eigen verwarmingssysteem en beschikt over een badkamer met douche, wastafel en toilet, wat extra mogelijkheden biedt voor gebruik als werkruimte of hobbyruimte.
De bestemming is gericht op permanente bewoning, passend bij het comfort en de kwaliteit die deze woning biedt.
Voor meer informatie over de gebruiksmogelijkheden verzoeken wij u contact met ons kantoor op te nemen.
INDELING:
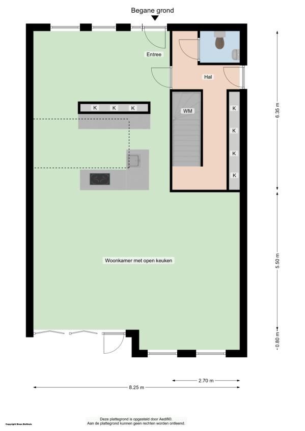
Begane grond:
Entree, royale en open leefruimte met woonkamer, luxe keuken, houtkachel en directe verbinding met de tuin middels schuifpui.
Verdieping:
Open verdieping met vide, flexibel in te delen ruimte met mogelijkheid tot realiseren van slaapkamers.
BIJZONDERHEDEN:
Energielabel A
Woonoppervlak: ca. 150 m²
Perceelgrootte: 689 m²
Bouwjaar: 2015
Modern eilanderhuis met hoogwaardige architectuur
Ontworpen met oog voor detail en materiaalgebruik
Open en flexibele indeling
Luxe keuken en sfeervolle houtkachel
Maatwerk kasten en hoogwaardige afwerking
Grote dakramen met veel lichtinval
Tuin op de zon met volledig te openen pui
Overtuin met geïsoleerde schuur
Schuur voorzien van verwarming en badkamer
Geschikt voor permanente bewoning
Beschut gelegen ten opzichte van de Reeweg en de Nieuwestreek, bevindt zich dit bijzondere en jonge eilanderhuis dat in een uitstekende staat van onderhoud verkeert. De woning is ontworpen als een eigentijdse interpretatie van de karakteristieke eilander bebouwing, waarbij architectuur, materiaalgebruik en detaillering op fraaie wijze samenkomen. Het geheel is gerealiseerd door een lokale aannemer, wat bijdraagt aan de authentieke uitstraling en kwaliteit.
Binnen wordt u verrast door de doordachte indeling en het hoge afwerkingsniveau. In elk detail is zichtbaar dat er met aandacht en visie is gewerkt. Zware binnendeuren met geïntegreerde scharnieren, in het glas verwerkte raambekleding, op afstand bedienbare dakramen en maatwerk kasten zorgen voor een verzorgde en comfortabele leefomgeving. De sfeervolle houtkachel en de luxe uitgevoerde keuken vormen het hart van de woning en dragen bij aan de warme en uitnodigende sfeer. De woning kenmerkt zich door openheid en ruimtelijkheid. In plaats van traditionele indelingen met meerdere afgesloten kamers is gekozen voor grote, vloeiende leefruimtes die op verschillende manieren te gebruiken zijn. Via de vide staat de verdieping in directe verbinding met de leefruimte beneden, terwijl de grote dakramen zorgen voor een aangename lichtinval. Indien gewenst is het mogelijk om de indeling aan te passen en extra kamers te realiseren.
De tuin is fraai aangelegd en gunstig op de zon gesitueerd. Een bijzonder element is de volledig wegschuifbare pui aan de achterzijde, waardoor binnen en buiten naadloos in elkaar overlopen en de tuin een verlengstuk van de woning vormt. Aan de overzijde, bereikbaar via een handgemaakt smeedijzeren hek, bevindt zich de overtuin met een recent gebouwde, volledig geïsoleerde schuur. Deze is voorzien van een eigen verwarmingssysteem en beschikt over een badkamer met douche, wastafel en toilet, wat extra mogelijkheden biedt voor gebruik als werkruimte of hobbyruimte.
De bestemming is gericht op permanente bewoning, passend bij het comfort en de kwaliteit die deze woning biedt.
Voor meer informatie over de gebruiksmogelijkheden verzoeken wij u contact met ons kantoor op te nemen.
INDELING:
Begane grond:
Entree, royale en open leefruimte met woonkamer, luxe keuken, houtkachel en directe verbinding met de tuin middels schuifpui.
Verdieping:
Open verdieping met vide, flexibel in te delen ruimte met mogelijkheid tot realiseren van slaapkamers.
BIJZONDERHEDEN:
Energielabel A
Woonoppervlak: ca. 150 m²
Perceelgrootte: 689 m²
Bouwjaar: 2015
Modern eilanderhuis met hoogwaardige architectuur
Ontworpen met oog voor detail en materiaalgebruik
Open en flexibele indeling
Luxe keuken en sfeervolle houtkachel
Maatwerk kasten en hoogwaardige afwerking
Grote dakramen met veel lichtinval
Tuin op de zon met volledig te openen pui
Overtuin met geïsoleerde schuur
Schuur voorzien van verwarming en badkamer
Geschikt voor permanente bewoning
Lees meer
Kenmerken
- Aantal kamers: 3
- Woonoppervlakte: 150 m²
- Perceeloppervlakte: 689 m²
- Inhoud: 550 m³
- Bouwjaar: 2015
- Energielabel: A
Media
Downloads
Omschrijving
Modern eilanderhuis met verfijnde architectuur en hoogwaardige afwerking op een centrale locatie in het dorpBeschut gelegen ten opzichte van de Reeweg en de Nieuwestreek, bevindt zich dit bijzondere en jonge eilanderhuis dat in een uitstekende staat van onderhoud verkeert. De woning is ontworpen als een eigentijdse interpretatie van de karakteristieke eilander bebouwing, waarbij architectuur, materiaalgebruik en detaillering op fraaie wijze samenkomen. Het geheel is gerealiseerd door een lokale aannemer, wat bijdraagt aan de authentieke uitstraling en kwaliteit.
Binnen wordt u verrast door de doordachte indeling en het hoge afwerkingsniveau. In elk detail is zichtbaar dat er met aandacht en visie is gewerkt. Zware binnendeuren met geïntegreerde scharnieren, in het glas verwerkte raambekleding, op afstand bedienbare dakramen en maatwerk kasten zorgen voor een verzorgde en comfortabele leefomgeving. De sfeervolle houtkachel en de luxe uitgevoerde keuken vormen het hart van de woning en dragen bij aan de warme en uitnodigende sfeer. De woning kenmerkt zich door openheid en ruimtelijkheid. In plaats van traditionele indelingen met meerdere afgesloten kamers is gekozen voor grote, vloeiende leefruimtes die op verschillende manieren te gebruiken zijn. Via de vide staat de verdieping in directe verbinding met de leefruimte beneden, terwijl de grote dakramen zorgen voor een aangename lichtinval. Indien gewenst is het mogelijk om de indeling aan te passen en extra kamers te realiseren.
De tuin is fraai aangelegd en gunstig op de zon gesitueerd. Een bijzonder element is de volledig wegschuifbare pui aan de achterzijde, waardoor binnen en buiten naadloos in elkaar overlopen en de tuin een verlengstuk van de woning vormt. Aan de overzijde, bereikbaar via een handgemaakt smeedijzeren hek, bevindt zich de overtuin met een recent gebouwde, volledig geïsoleerde schuur. Deze is voorzien van een eigen verwarmingssysteem en beschikt over een badkamer met douche, wastafel en toilet, wat extra mogelijkheden biedt voor gebruik als werkruimte of hobbyruimte.
De bestemming is gericht op permanente bewoning, passend bij het comfort en de kwaliteit die deze woning biedt.
Voor meer informatie over de gebruiksmogelijkheden verzoeken wij u contact met ons kantoor op te nemen.
INDELING:
Begane grond:
Entree, royale en open leefruimte met woonkamer, luxe keuken, houtkachel en directe verbinding met de tuin middels schuifpui.
Verdieping:
Open verdieping met vide, flexibel in te delen ruimte met mogelijkheid tot realiseren van slaapkamers.
BIJZONDERHEDEN:
Energielabel A
Woonoppervlak: ca. 150 m²
Perceelgrootte: 689 m²
Bouwjaar: 2015
Modern eilanderhuis met hoogwaardige architectuur
Ontworpen met oog voor detail en materiaalgebruik
Open en flexibele indeling
Luxe keuken en sfeervolle houtkachel
Maatwerk kasten en hoogwaardige afwerking
Grote dakramen met veel lichtinval
Tuin op de zon met volledig te openen pui
Overtuin met geïsoleerde schuur
Schuur voorzien van verwarming en badkamer
Geschikt voor permanente bewoning
Kenmerken
Overdracht
- Vraagprijs
- € 1.095.000 k.k.
- Status
- Beschikbaar
- Aanvaarding
- In Overleg
Bouw
- Type woning
- Villa
- Soort Bouw
- Bestaande Bouw
- Bouwjaar
- 2015
- Daktype
- Zadeldak
Oppervlakte en Inhoud
- Woonoppervlakte
- 150 m²
- Externe Bergruimte
- 30 m²
- Perceel
- -
- Totale kadastrale oppervlakte
- 689 m²
- Inhoud
- 550 m³
Indeling
- Aantal kamers
- 3
- Badkamer(s) voorzieningen
- Woonlagen
- 1
Energie
- Energielabel
- A
- Isolatievormen
- Volledig Geisoleerd
- Verwarming
- Cv Ketel, Vloerverwarming Gedeeltelijk, Houtkachel
- Warmwater
- Cv Ketel
- Type CV Ketel
- Nefit
Kadastrale gegevens
- Oppervlakte Kadastraal
- 689 m²
- Omvang Kadastraal
- -
Buitenruimte
- Liggingen
- Aan Rustige Weg, In Centrum, Beschutte Ligging
- Tuin
- Achtertuin, Voortuin
- Locatie
- Zuid
Bergruimte
- Schuur/Berging
- Vrijstaand Hout
Parkeergelegenheid
- Parkeergelegenheid
- -
Garage
- Soort(en) Garage
- Geen Garage
- Voorzieningen Garage
- -
- Capaciteit Garage
Media
Buurtinfo
Downloads
Ken uw buurt
Middenstreek 7,
9166 LL, Schiermonnikoog
Voorzieningen in de buurt
Buurtstatistieken
Hypotheekgesprek aanvragen
Plan uw bezichtiging
Maak gebruik van ons planningsplatform of download de brochure voor meer informatie.