Error inserting data: Duplicate entry 'BU19520208-2024' for key 'unique_buurt_jaar'Error fetching data: file_get_contents(https://api.pdok.nl/cbs/wijken-en-buurten-2024/ogc/v1/collections/gemeenten/items?f=json&gemeentecode=&limit=1): Failed to open stream: HTTP request failed! HTTP/1.1 400 Bad Request
| OVERDRACHT | |
| Vraagprijs | € 289.000 |
| Status | Verkocht |
| Aanvaarding | In overleg |
| BOUW | |
| Type | Eengezinswoning |
| Soort Bouw | Bestaande bouw |
| Bouwjaar | 1973 |
| Daktype | Zadeldak |
| OPPERVLAKTE EN INHOUD | |
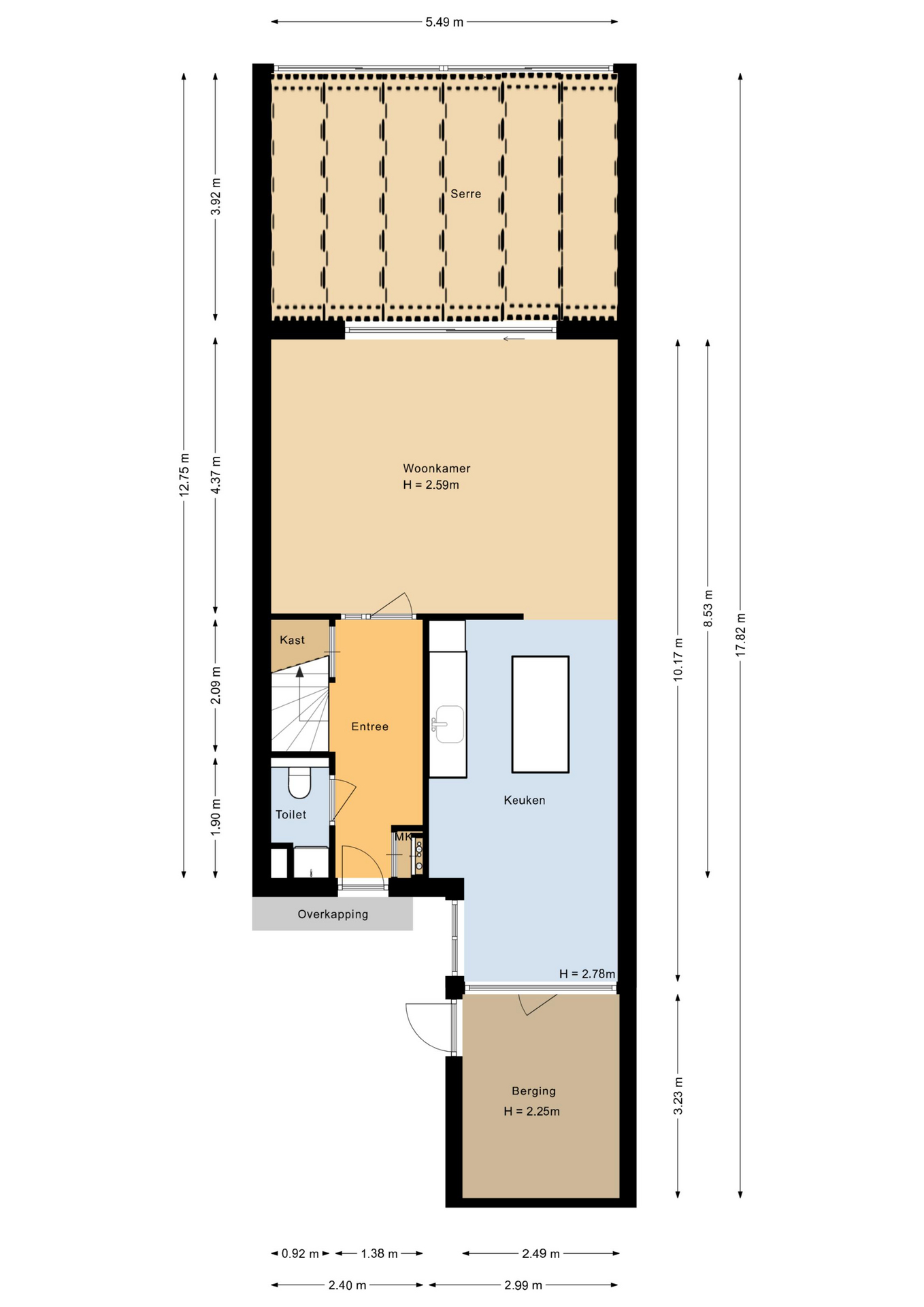
| Woonoppervlakte | 130 m2 |
| Externe Bergruimte | 0 m2 |
| Perceel | 7597 |
| Perceel Oppervlakte | 132 m2 |
| Inhoud | 448 m2 |
| INDELING | |
| Aantal Kamers | 5 (4 Slaapkamers) |
| Badkamer(s) voorzieningen | Toilet Wastafel Wastafelmeubel Inloopdouche |
| Woonlagen | 3 |
| ENERGIE | |
| Energielabel | A |
| Isolatievormen | Dakisolatie Vloerisolatie Hr glas |
| Verwarming | Cv ketel Vloerverwarming gedeeltelijk |
| Warmwater | Cv ketel |
| Type CV Ketel | Remeha Avanta (Eigendom) |
| KADASTRALE GEGEVENS | |
| Oppervlakte | 132 m2 |
| Omvang | Geheel perceel |
| BUITENRUIMTE | |
| Liggingen | Aan rustige weg In woonwijk Beschutte ligging |
| Tuin | Achtertuin |
| Locatie | Zuid |
| BERGRUIMTE | |
| Schuur/Berging | Aangebouwd steen |
| PARKEERGELEGENHEID | |
| Parkeergelegenheid | Openbaar parkeren |
| GARAGE | |
| Soort(en) Garage | Geen garage |

T/m 30 november staan onze makelaars klaar voor een vrijblijvend verkoopadvies. Ontdek wat uw woning waard is én welke verkoopstrategie het beste past bij uw situatie.
Plan uw vrijblijvend verkoopadviesgesprek