Prinsenstraat 25
9711 CL, Groningen
€ 595.000 k.k.

Omschrijving

Zoekt u een ruime, moderne tussenwoning, gelegen in het hart van de bruisende binnenstad van Groningen?

Deze goed onderhouden tussenwoning uit 1999 is voorzien van drie slaapkamers, een royaal dakterras én een heerlijke stadstuin op het zuiden, gelegen aan een rustige zijstraat van de welbekende Herestraat. Aan de achterzijde bevindt zich een gemeenschappelijk achterterrein met een door een hekwerk afgesloten toegang tot de openbare weg. Via dit afgesloten binnenterrein is toegang tot de achtertuin met carport met roldeur en een stenen berging. Hierdoor is het een heerlijk rustig en kindvriendelijk woonhuis met tevens voldoende buitenruimte.

Gelegen op een historische locatie binnen de diepenring van Groningen, tussen het Zuiderdiep en de Heresingel, biedt dit huis met uitzicht op het St. Antony’s gasthuis een ware oase van rust in het levendige hart van Groningen. Ideaal gelegen op loopafstand van diverse voorzieningen zoals de Stadsschouwburg, cultureel centrum Oosterpoort, maar ook omringd door cafés, restaurants en winkels. Zo ligt bijvoorbeeld de Albert Heijn, als verlengde van de provisiekast, letterlijk om de hoek!

Kortom: een moderne en praktische tussenwoning gelegen in het centrum van Groningen!

INDELING

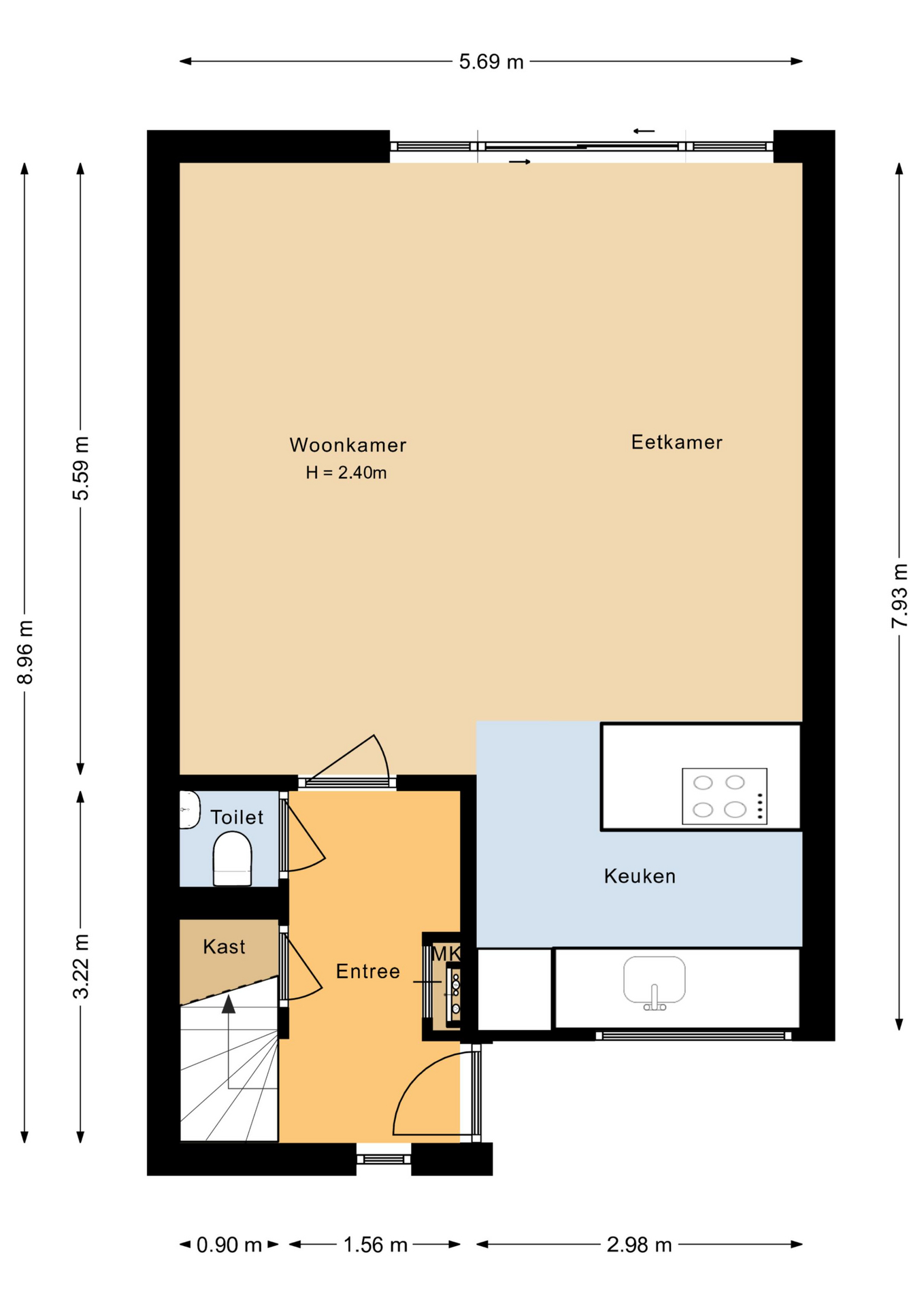
Begane grond:
Via de voordeur komt u in de hal/entree voorzien van een meterkast , trapkast en een geheel betegelde wc-ruimte voorzien van wandcloset en fonteintje. Via de hal is toegang tot de lichte en tuingerichte woonkamer met zicht op het achtergelegen eeuwenoude St. Antony’s gasthuis. De woonkamer is voorzien van een moderne open keuken (Deens design). De moderne keuken is uitgerust met een inductie vier pits kookplaat, kookplaat afzuiging, koelkast, hete lucht oven en een vaatwasser. De woonkamer voelt nog ruimer aan door schuifpui die naar de achtergelegen tuin leidt, dit zorgt voor een verlenging van de woonkamer.

Eerste verdieping:
Ruime overloop met cv-ruimte, berging en geheel betegelde wc-ruimte . Twee slaapkamers resp. 15 en 11 m². Praktisch ruime badkamer met douche, ligbad en dubbele wastafel.

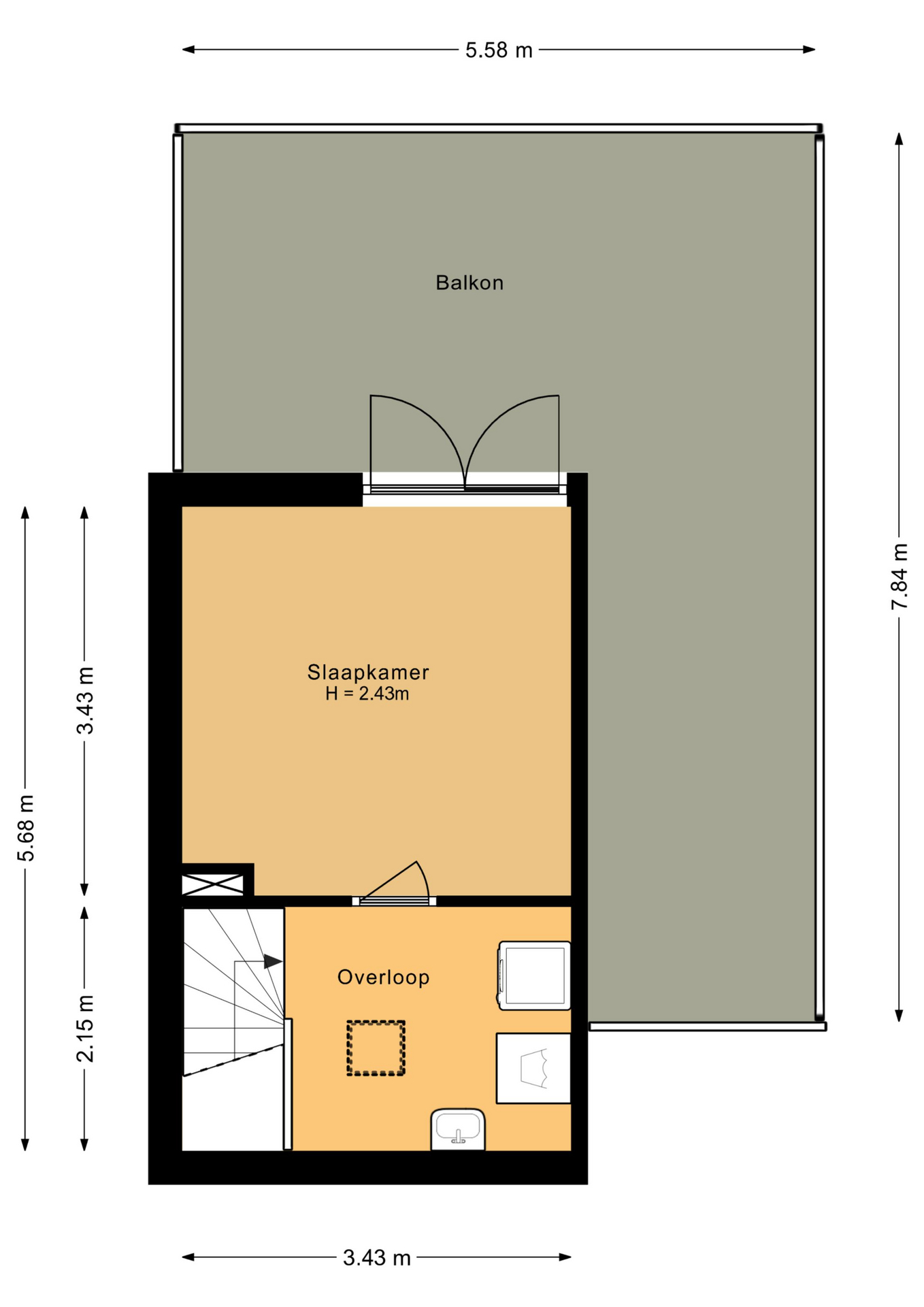
Tweede verdieping:
Lichte overloop met aansluiting voor wasmachine en een kleine wastafel en een 3e slaapkamer van ca. 15 m² met toegang tot het geheel betegelde en zonnige 25 m² grote dakterras. Het is mogelijk meer woonruimte te creëren door uit te bouwen op het dakterras.

BIJZONDERHEDEN:

Energielabel A
Bouwjaar: 1999
Woonoppervlakte: ca. 116 m² (eenvoudig te vergroten)
Perceeloppervlak: 113 m²
Volledige geïsoleerd
Nieuwe CV combiketel (2024)
Nieuwe keuken geplaatst (2023)
Nieuwe tuinaanleg (2022)
Parkeren op eigen perceel!
Lees meer

Kenmerken

  • Aantal kamers: 4
  • Woonoppervlakte: 116 m²
  • Perceeloppervlakte: 113 m²
  • Inhoud: 380 m³
  • Bouwjaar: 1999
  • Energielabel:
    A

Media

5
Plattegrond

Downloads

Omschrijving

Zoekt u een ruime, moderne tussenwoning, gelegen in het hart van de bruisende binnenstad van Groningen?

Deze goed onderhouden tussenwoning uit 1999 is voorzien van drie slaapkamers, een royaal dakterras én een heerlijke stadstuin op het zuiden, gelegen aan een rustige zijstraat van de welbekende Herestraat. Aan de achterzijde bevindt zich een gemeenschappelijk achterterrein met een door een hekwerk afgesloten toegang tot de openbare weg. Via dit afgesloten binnenterrein is toegang tot de achtertuin met carport met roldeur en een stenen berging. Hierdoor is het een heerlijk rustig en kindvriendelijk woonhuis met tevens voldoende buitenruimte.

Gelegen op een historische locatie binnen de diepenring van Groningen, tussen het Zuiderdiep en de Heresingel, biedt dit huis met uitzicht op het St. Antony’s gasthuis een ware oase van rust in het levendige hart van Groningen. Ideaal gelegen op loopafstand van diverse voorzieningen zoals de Stadsschouwburg, cultureel centrum Oosterpoort, maar ook omringd door cafés, restaurants en winkels. Zo ligt bijvoorbeeld de Albert Heijn, als verlengde van de provisiekast, letterlijk om de hoek!

Kortom: een moderne en praktische tussenwoning gelegen in het centrum van Groningen!

INDELING

Begane grond:
Via de voordeur komt u in de hal/entree voorzien van een meterkast , trapkast en een geheel betegelde wc-ruimte voorzien van wandcloset en fonteintje. Via de hal is toegang tot de lichte en tuingerichte woonkamer met zicht op het achtergelegen eeuwenoude St. Antony’s gasthuis. De woonkamer is voorzien van een moderne open keuken (Deens design). De moderne keuken is uitgerust met een inductie vier pits kookplaat, kookplaat afzuiging, koelkast, hete lucht oven en een vaatwasser. De woonkamer voelt nog ruimer aan door schuifpui die naar de achtergelegen tuin leidt, dit zorgt voor een verlenging van de woonkamer.

Eerste verdieping:
Ruime overloop met cv-ruimte, berging en geheel betegelde wc-ruimte . Twee slaapkamers resp. 15 en 11 m². Praktisch ruime badkamer met douche, ligbad en dubbele wastafel.

Tweede verdieping:
Lichte overloop met aansluiting voor wasmachine en een kleine wastafel en een 3e slaapkamer van ca. 15 m² met toegang tot het geheel betegelde en zonnige 25 m² grote dakterras. Het is mogelijk meer woonruimte te creëren door uit te bouwen op het dakterras.

BIJZONDERHEDEN:

Energielabel A
Bouwjaar: 1999
Woonoppervlakte: ca. 116 m² (eenvoudig te vergroten)
Perceeloppervlak: 113 m²
Volledige geïsoleerd
Nieuwe CV combiketel (2024)
Nieuwe keuken geplaatst (2023)
Nieuwe tuinaanleg (2022)
Parkeren op eigen perceel!

Kenmerken

Overdracht

Vraagprijs
€ 595.000 k.k.
Status
Verkocht
Aanvaarding
In Overleg

Bouw

Type woning
Eengezinswoning
Soort Bouw
Bestaande Bouw
Bouwjaar
1999
Daktype
Plat Dak

Oppervlakte en Inhoud

Woonoppervlakte
116 m²
Externe Bergruimte
5 m²
Perceel
4142 m²
Totale kadastrale oppervlakte
113 m²
Inhoud
380 m³

Indeling

Aantal kamers
4
Badkamer(s) voorzieningen
Woonlagen
1

Energie

Energielabel
A
Isolatievormen
Dakisolatie, Muurisolatie, Vloerisolatie
Verwarming
Cv Ketel
Warmwater
Cv Ketel
Type CV Ketel
Intergas Xtreme 30

Kadastrale gegevens

Oppervlakte Kadastraal
113 m²
Omvang Kadastraal
Geheel Perceel

Buitenruimte

Liggingen
Aan Rustige Weg, In Centrum, In Woonwijk, Beschutte Ligging
Tuin
Achtertuin, Zonneterras
Locatie
Zuidoost

Bergruimte

Schuur/Berging
Vrijstaand Steen

Parkeergelegenheid

Parkeergelegenheid
Betaald Parkeren, Parkeervergunningen, Op Eigen Terrein

Garage

Soort(en) Garage
Carport
Voorzieningen Garage
-
Capaciteit Garage

Media

Buurtinfo

Downloads

Ken uw buurt

Prinsenstraat 25, 9711 CL, Groningen

Voorzieningen in de buurt

Buurtstatistieken

Hypotheekgesprek aanvragen

Wil je weten hoeveel je kunt lenen voor een nieuwe woning en wat dat betekent voor je maandlasten? Vraag een gratis hypotheekgesprek aan en krijg direct persoonlijk inzicht.

Ik wil graag aankoopbegeleiding

Wil je professionele hulp bij het vinden en aankopen van jouw nieuwe woning? Met aankoopbegeleiding sta je sterker tijdens het bieden, onderhandelen en controleren van zaken op maat.

Heeft u vragen?
Patrick
Patrick Blomsma
NVM Makelaar
Plan uw bezichtiging

Maak gebruik van ons planningsplatform of download de brochure voor meer informatie.