Rijksstraatweg 308 a
9752 CM, Haren gn
€ 945.000 k.k.
Omschrijving
Prachtig gelegen in een groene, lommerrijke omgeving, biedt deze half vrijstaande jaren '30 villa een unieke combinatie van charme en comfort. Het royale perceel met aan de achterzijde vrij uitzicht over het landelijke landschap zorgt voor rust en privacy
Deze karaktervolle woning weet de charme van de jaren '30 te combineren met hedendaags wooncomfort. De moderne keuken biedt een stijlvolle en praktische ruimte, perfect voor culinaire liefhebbers. Met vijf ruime slaapkamers en een flexibele indeling is er volop ruimte voor gezinnen die waarde hechten aan comfort en veelzijdigheid. De woning leent zich uitstekend voor uiteenlopende woonwensen, zoals een praktijk aan huis, dubbele bewoning of zelfs een kangoeroewoning. De lichte tuinkamer, die uitkijkt op de fraai aangelegde tuin, vormt een ideale plek om te ontspannen. De rustieke uitstraling van de woning wordt versterkt door het landelijke uitzicht en de privacy die de royale achtertuin biedt.
De woning is gelegen in een rustige, lommerrijke straat, net buiten de drukte, maar toch met alle voorzieningen binnen handbereik. Winkels, sportfaciliteiten en (internationale) basis- en middelbare scholen zijn gemakkelijk met de fiets bereikbaar. Deze locatie biedt het beste van twee werelden: de nabijheid van de stad gecombineerd met de rust van de natuur. De snelwegen A28 en A7 zijn snel toegankelijk, waardoor u vlot in de stad bent. Tegelijkertijd liggen de prachtige natuurgebieden Sassenheim en Appelbergen op een steenworp afstand, waar u volop kunt genieten van rust, ruimte en mooie wandel- en fietspaden.
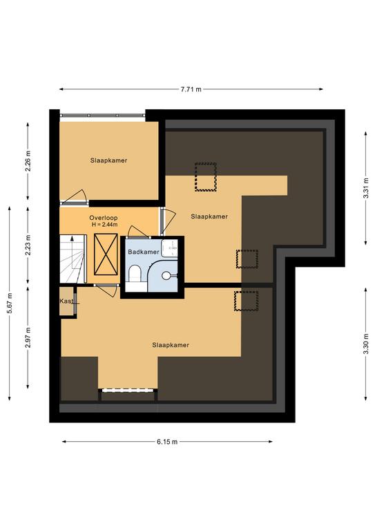
INDELING:
Begane grond:
Entree/tochtportaal, hal met trapopgang en toegang tot kelder, wandcloset met fonteintje, sfeervolle living, woonkeuken met moderne keuken voorzien van diverse inbouwapparatuur, bijkeuken met toegang tot de garage.
Eerste verdieping:
Overloop, separaat toilet, 3 slaapkamers, nette badkamer met douche, ligbad en wastafel.
Tweede verdieping:
Overloop, 3 slaapkamers, nette 2e badkamer met douche, wastafel en toilet.
BIJZONDERHEDEN:
Energielabel: C
Woonoppervlak: ca. 202 m²
Perceelgrootte: 560 m²
Diverse authentieke elementen nog aanwezig (glas-in-lood, granito vloer, paneeldeuren)
Ideaal familiehuis
6 slaapkamers, 2 badkamers
Royale garage met elektrische deur en vliering
Landelijke omgeving en tegelijkertijd dicht bij scholen, winkels en uitvalswegen
Deze karaktervolle woning weet de charme van de jaren '30 te combineren met hedendaags wooncomfort. De moderne keuken biedt een stijlvolle en praktische ruimte, perfect voor culinaire liefhebbers. Met vijf ruime slaapkamers en een flexibele indeling is er volop ruimte voor gezinnen die waarde hechten aan comfort en veelzijdigheid. De woning leent zich uitstekend voor uiteenlopende woonwensen, zoals een praktijk aan huis, dubbele bewoning of zelfs een kangoeroewoning. De lichte tuinkamer, die uitkijkt op de fraai aangelegde tuin, vormt een ideale plek om te ontspannen. De rustieke uitstraling van de woning wordt versterkt door het landelijke uitzicht en de privacy die de royale achtertuin biedt.
De woning is gelegen in een rustige, lommerrijke straat, net buiten de drukte, maar toch met alle voorzieningen binnen handbereik. Winkels, sportfaciliteiten en (internationale) basis- en middelbare scholen zijn gemakkelijk met de fiets bereikbaar. Deze locatie biedt het beste van twee werelden: de nabijheid van de stad gecombineerd met de rust van de natuur. De snelwegen A28 en A7 zijn snel toegankelijk, waardoor u vlot in de stad bent. Tegelijkertijd liggen de prachtige natuurgebieden Sassenheim en Appelbergen op een steenworp afstand, waar u volop kunt genieten van rust, ruimte en mooie wandel- en fietspaden.
INDELING:
Begane grond:
Entree/tochtportaal, hal met trapopgang en toegang tot kelder, wandcloset met fonteintje, sfeervolle living, woonkeuken met moderne keuken voorzien van diverse inbouwapparatuur, bijkeuken met toegang tot de garage.
Eerste verdieping:
Overloop, separaat toilet, 3 slaapkamers, nette badkamer met douche, ligbad en wastafel.
Tweede verdieping:
Overloop, 3 slaapkamers, nette 2e badkamer met douche, wastafel en toilet.
BIJZONDERHEDEN:
Energielabel: C
Woonoppervlak: ca. 202 m²
Perceelgrootte: 560 m²
Diverse authentieke elementen nog aanwezig (glas-in-lood, granito vloer, paneeldeuren)
Ideaal familiehuis
6 slaapkamers, 2 badkamers
Royale garage met elektrische deur en vliering
Landelijke omgeving en tegelijkertijd dicht bij scholen, winkels en uitvalswegen
Lees meer
Kenmerken
- Aantal kamers: 7
- Woonoppervlakte: 202 m²
- Perceeloppervlakte: 560 m²
- Inhoud: 912 m³
- Bouwjaar: 1933
- Energielabel: C
Media
Downloads
Brochure
Omschrijving
Prachtig gelegen in een groene, lommerrijke omgeving, biedt deze half vrijstaande jaren '30 villa een unieke combinatie van charme en comfort. Het royale perceel met aan de achterzijde vrij uitzicht over het landelijke landschap zorgt voor rust en privacyDeze karaktervolle woning weet de charme van de jaren '30 te combineren met hedendaags wooncomfort. De moderne keuken biedt een stijlvolle en praktische ruimte, perfect voor culinaire liefhebbers. Met vijf ruime slaapkamers en een flexibele indeling is er volop ruimte voor gezinnen die waarde hechten aan comfort en veelzijdigheid. De woning leent zich uitstekend voor uiteenlopende woonwensen, zoals een praktijk aan huis, dubbele bewoning of zelfs een kangoeroewoning. De lichte tuinkamer, die uitkijkt op de fraai aangelegde tuin, vormt een ideale plek om te ontspannen. De rustieke uitstraling van de woning wordt versterkt door het landelijke uitzicht en de privacy die de royale achtertuin biedt.
De woning is gelegen in een rustige, lommerrijke straat, net buiten de drukte, maar toch met alle voorzieningen binnen handbereik. Winkels, sportfaciliteiten en (internationale) basis- en middelbare scholen zijn gemakkelijk met de fiets bereikbaar. Deze locatie biedt het beste van twee werelden: de nabijheid van de stad gecombineerd met de rust van de natuur. De snelwegen A28 en A7 zijn snel toegankelijk, waardoor u vlot in de stad bent. Tegelijkertijd liggen de prachtige natuurgebieden Sassenheim en Appelbergen op een steenworp afstand, waar u volop kunt genieten van rust, ruimte en mooie wandel- en fietspaden.
INDELING:
Begane grond:
Entree/tochtportaal, hal met trapopgang en toegang tot kelder, wandcloset met fonteintje, sfeervolle living, woonkeuken met moderne keuken voorzien van diverse inbouwapparatuur, bijkeuken met toegang tot de garage.
Eerste verdieping:
Overloop, separaat toilet, 3 slaapkamers, nette badkamer met douche, ligbad en wastafel.
Tweede verdieping:
Overloop, 3 slaapkamers, nette 2e badkamer met douche, wastafel en toilet.
BIJZONDERHEDEN:
Energielabel: C
Woonoppervlak: ca. 202 m²
Perceelgrootte: 560 m²
Diverse authentieke elementen nog aanwezig (glas-in-lood, granito vloer, paneeldeuren)
Ideaal familiehuis
6 slaapkamers, 2 badkamers
Royale garage met elektrische deur en vliering
Landelijke omgeving en tegelijkertijd dicht bij scholen, winkels en uitvalswegen
Kenmerken
Overdracht
- Vraagprijs
- € 945.000 k.k.
- Status
- Verkocht
- Aanvaarding
- In Overleg
Bouw
- Type woning
- Villa
- Soort Bouw
- Bestaande Bouw
- Bouwjaar
- 1933
- Daktype
- Samengesteld Dak
Oppervlakte en Inhoud
- Woonoppervlakte
- 202 m²
- Externe Bergruimte
- 0 m²
- Perceel
- 8932 m²
- Totale kadastrale oppervlakte
- 560 m²
- Inhoud
- 912 m³
Indeling
- Aantal kamers
- 7
- Badkamer(s) voorzieningen
- Ligbad, Toilet, Douche, Dubbele Wastafel, Wastafel
- Woonlagen
- 4
Energie
- Energielabel
- C
- Isolatievormen
- Dakisolatie, Muurisolatie, Vloerisolatie, Voorzetramen, Grotendeels Dubbelglas, Hr Glas
- Verwarming
- Cv Ketel, Vloerverwarming Gedeeltelijk
- Warmwater
- Cv Ketel
- Type CV Ketel
- Remeha Calenta 40l
Kadastrale gegevens
- Oppervlakte Kadastraal
- 560 m²
- Omvang Kadastraal
- Geheel Perceel
Buitenruimte
- Liggingen
- Tuin
- Achtertuin, Voortuin, Zijtuin
- Locatie
- Noordoost
Bergruimte
- Schuur/Berging
- -
Parkeergelegenheid
- Parkeergelegenheid
- Openbaar Parkeren, Op Eigen Terrein
Garage
- Soort(en) Garage
- Aangebouwd Steen
- Voorzieningen Garage
- Elektra, Vliering, Elektrische Deur
- Capaciteit Garage
- 2
Media
Buurtinfo
Downloads
Brochure
Ken uw buurt
Rijksstraatweg 308 a,
9752 CM, Haren gn
Voorzieningen in de buurt
Buurtstatistieken
Hypotheekgesprek aanvragen
Lorem ipsum dolor sit amet, consetetur sadipscing elitr, sed diam nonumy eirmod tempor invidunt ut labore et dolore magna aliquyam erat, sed diam voluptua. At vero eos et