| OVERDRACHT | |
| Vraagprijs | € 375.000 |
| Status | Verkocht |
| Aanvaarding | In overleg |
| BOUW | |
| Type | Eengezinswoning |
| Soort Bouw | Bestaande bouw |
| Bouwjaar | 1990 |
| Daktype | Samengesteld dak |
| OPPERVLAKTE EN INHOUD | |
| Woonoppervlakte | 103 m2 |
| Externe Bergruimte | 0 m2 |
| Perceel | 3327 |
| Perceel Oppervlakte | 181 m2 |
| Inhoud | 355 m2 |
| INDELING | |
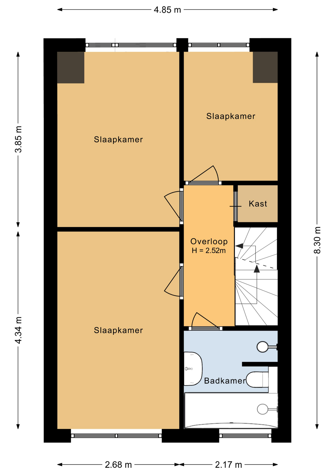
| Aantal Kamers | 5 (4 Slaapkamers) |
| Badkamer(s) voorzieningen | Ligbad Toilet Wastafel Inloopdouche |
| Woonlagen | 3 |
| ENERGIE | |
| Energielabel | A |
| Isolatievormen | Dakisolatie Muurisolatie Vloerisolatie Hr glas |
| Verwarming | Cv ketel Vloerverwarming gedeeltelijk |
| Warmwater | Cv ketel |
| Type CV Ketel | Remeha Calenta 28C (Eigendom) |
| KADASTRALE GEGEVENS | |
| Oppervlakte | 181 m2 |
| Omvang | Geheel perceel |
| BUITENRUIMTE | |
| Liggingen | Aan rustige weg In woonwijk |
| Tuin | Achtertuin Voortuin |
| Locatie | Noordwest |
| BERGRUIMTE | |
| Schuur/Berging | Vrijstaand hout |
| PARKEERGELEGENHEID | |
| Parkeergelegenheid | Openbaar parkeren Op eigen terrein |
| GARAGE | |
| Soort(en) Garage | Geen garage |
