Viaductweg 3
9751 HN, Haren gn
€ 675.000 k.k.
Omschrijving
Karakteristiek halfvrijstaand jaren '30 woonhuis gelegen op een prachtige groene locatie met een eigen bos!
Deze sfeervolle voormalig bakkerij weet de charme van de jaren '30 te combineren met hedendaags wooncomfort. Met vijf ruime slaapkamers en een flexibele indeling biedt het volop ruimte voor gezinnen die waarde hechten aan comfort en veelzijdigheid. De woning leent zich uitstekend voor uiteenlopende woonwensen, zoals een praktijk aan huis, dubbele bewoning of zelfs een kangoeroewoning. De lichte tuinkamer biedt een prettig uitzicht op de ruime achtertuin die veel privacy en mogelijkheden biedt. Recent is de woning voorzien van een nieuwe luxe keuken, zijn de houten vloeren geschuurd en is het schilderwerk buitenom gedaan.
De woning is gelegen in een rustige, lommerrijke straat, net buiten de drukte, maar toch met alle voorzieningen binnen handbereik. Winkels, sportfaciliteiten en (internationale) basis- en middelbare scholen zijn gemakkelijk met de fiets bereikbaar. Deze locatie biedt het beste van twee werelden: de nabijheid van de stad gecombineerd met de rust van de natuur. De snelwegen A28 en A7 zijn snel toegankelijk, waardoor u vlot in de stad bent. Tegelijkertijd liggen de prachtige natuurgebieden Sassenheim en Appelbergen op een steenworp afstand, waar u volop kunt genieten van rust, ruimte en mooie wandel-en fietspaden.
Kortom: een instap-klaar jaren '30 woonhuis met voldoende leefruimte in en buiten het huis!
INDELING:
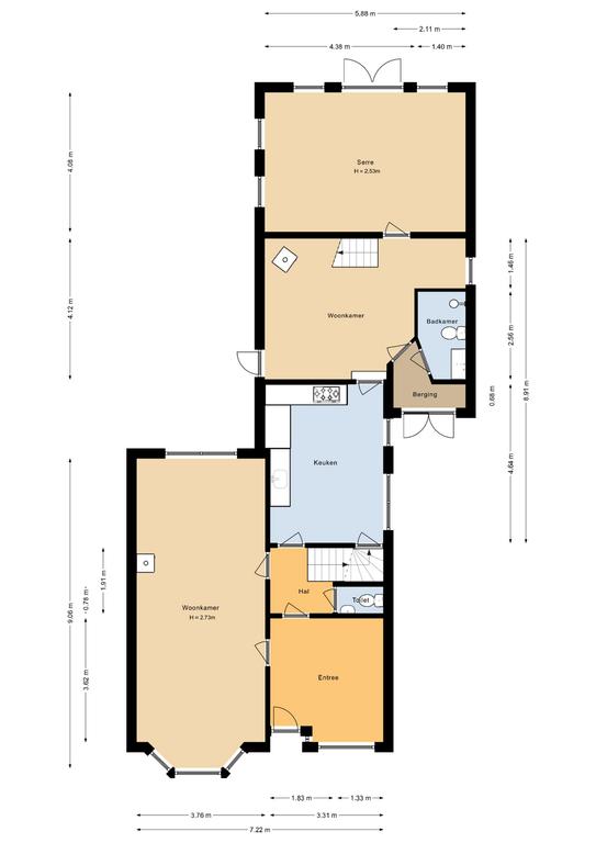
Begane grond:
Via de ruime hal/entree, toilet, sfeervolle woonkamer met fraaie houten vloer, erker en houtkachel, royale woonkeuken die volledig is vernieuwd in 2024 en is voorzien van modern inbouwapparatuur waaronder een Quooker. Vanuit de keuken is toegang tot een praktische provisiekelder. Aan de achterzijde van de woning bevindt zich een zonnige tuinkamer met uitzicht op de tuin op het zuiden. Daarnaast vindt u op de begane grond een badkamer met douche en een 2e toilet, een tussenkamer met houtkachel en via een vaste trap toegang tot een slaapzolder, en een achteringang naar de tuin.
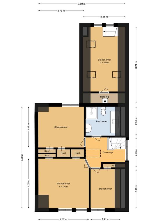
Eerste verdieping:
Overloop, drie slaapkamers met vaste kasten en een badkamer met ligbad, douche, wastafel en tweede toilet.
Tweede verdieping:
De zolder is bereikbaar via een vlizotrap en biedt volop opbergruimte. Deze verdieping is eenvoudig om te bouwen tot een extra slaapkamer.
BIJZONDERHEDEN:
Energielabel C
Woonoppervlakte: ca. 187 m²
Perceeloppervlakte: 942 m²
Bouwjaar: 1935
Luxe nieuwe keuken met tegelvloer (2024)
Buiten schilderwerk nieuw (2024)
Veel originele jaren ’30 details
Grotendeels voorzien van dubbele beglazing
Ligt in nationaal park Drentse Aa met zandwegen en fietspaden
Paterswoldse Meer, Hoornse Meer en Zuidlaardermeer vlakbij
Deze sfeervolle voormalig bakkerij weet de charme van de jaren '30 te combineren met hedendaags wooncomfort. Met vijf ruime slaapkamers en een flexibele indeling biedt het volop ruimte voor gezinnen die waarde hechten aan comfort en veelzijdigheid. De woning leent zich uitstekend voor uiteenlopende woonwensen, zoals een praktijk aan huis, dubbele bewoning of zelfs een kangoeroewoning. De lichte tuinkamer biedt een prettig uitzicht op de ruime achtertuin die veel privacy en mogelijkheden biedt. Recent is de woning voorzien van een nieuwe luxe keuken, zijn de houten vloeren geschuurd en is het schilderwerk buitenom gedaan.
De woning is gelegen in een rustige, lommerrijke straat, net buiten de drukte, maar toch met alle voorzieningen binnen handbereik. Winkels, sportfaciliteiten en (internationale) basis- en middelbare scholen zijn gemakkelijk met de fiets bereikbaar. Deze locatie biedt het beste van twee werelden: de nabijheid van de stad gecombineerd met de rust van de natuur. De snelwegen A28 en A7 zijn snel toegankelijk, waardoor u vlot in de stad bent. Tegelijkertijd liggen de prachtige natuurgebieden Sassenheim en Appelbergen op een steenworp afstand, waar u volop kunt genieten van rust, ruimte en mooie wandel-en fietspaden.
Kortom: een instap-klaar jaren '30 woonhuis met voldoende leefruimte in en buiten het huis!
INDELING:
Begane grond:
Via de ruime hal/entree, toilet, sfeervolle woonkamer met fraaie houten vloer, erker en houtkachel, royale woonkeuken die volledig is vernieuwd in 2024 en is voorzien van modern inbouwapparatuur waaronder een Quooker. Vanuit de keuken is toegang tot een praktische provisiekelder. Aan de achterzijde van de woning bevindt zich een zonnige tuinkamer met uitzicht op de tuin op het zuiden. Daarnaast vindt u op de begane grond een badkamer met douche en een 2e toilet, een tussenkamer met houtkachel en via een vaste trap toegang tot een slaapzolder, en een achteringang naar de tuin.
Eerste verdieping:
Overloop, drie slaapkamers met vaste kasten en een badkamer met ligbad, douche, wastafel en tweede toilet.
Tweede verdieping:
De zolder is bereikbaar via een vlizotrap en biedt volop opbergruimte. Deze verdieping is eenvoudig om te bouwen tot een extra slaapkamer.
BIJZONDERHEDEN:
Energielabel C
Woonoppervlakte: ca. 187 m²
Perceeloppervlakte: 942 m²
Bouwjaar: 1935
Luxe nieuwe keuken met tegelvloer (2024)
Buiten schilderwerk nieuw (2024)
Veel originele jaren ’30 details
Grotendeels voorzien van dubbele beglazing
Ligt in nationaal park Drentse Aa met zandwegen en fietspaden
Paterswoldse Meer, Hoornse Meer en Zuidlaardermeer vlakbij
Lees meer
Kenmerken
- Aantal kamers: 8
- Woonoppervlakte: 187 m²
- Perceeloppervlakte: 942 m²
- Inhoud: 783 m³
- Bouwjaar: 1935
- Energielabel: C
Media
Downloads
energielabel
Omschrijving
Karakteristiek halfvrijstaand jaren '30 woonhuis gelegen op een prachtige groene locatie met een eigen bos!Deze sfeervolle voormalig bakkerij weet de charme van de jaren '30 te combineren met hedendaags wooncomfort. Met vijf ruime slaapkamers en een flexibele indeling biedt het volop ruimte voor gezinnen die waarde hechten aan comfort en veelzijdigheid. De woning leent zich uitstekend voor uiteenlopende woonwensen, zoals een praktijk aan huis, dubbele bewoning of zelfs een kangoeroewoning. De lichte tuinkamer biedt een prettig uitzicht op de ruime achtertuin die veel privacy en mogelijkheden biedt. Recent is de woning voorzien van een nieuwe luxe keuken, zijn de houten vloeren geschuurd en is het schilderwerk buitenom gedaan.
De woning is gelegen in een rustige, lommerrijke straat, net buiten de drukte, maar toch met alle voorzieningen binnen handbereik. Winkels, sportfaciliteiten en (internationale) basis- en middelbare scholen zijn gemakkelijk met de fiets bereikbaar. Deze locatie biedt het beste van twee werelden: de nabijheid van de stad gecombineerd met de rust van de natuur. De snelwegen A28 en A7 zijn snel toegankelijk, waardoor u vlot in de stad bent. Tegelijkertijd liggen de prachtige natuurgebieden Sassenheim en Appelbergen op een steenworp afstand, waar u volop kunt genieten van rust, ruimte en mooie wandel-en fietspaden.
Kortom: een instap-klaar jaren '30 woonhuis met voldoende leefruimte in en buiten het huis!
INDELING:
Begane grond:
Via de ruime hal/entree, toilet, sfeervolle woonkamer met fraaie houten vloer, erker en houtkachel, royale woonkeuken die volledig is vernieuwd in 2024 en is voorzien van modern inbouwapparatuur waaronder een Quooker. Vanuit de keuken is toegang tot een praktische provisiekelder. Aan de achterzijde van de woning bevindt zich een zonnige tuinkamer met uitzicht op de tuin op het zuiden. Daarnaast vindt u op de begane grond een badkamer met douche en een 2e toilet, een tussenkamer met houtkachel en via een vaste trap toegang tot een slaapzolder, en een achteringang naar de tuin.
Eerste verdieping:
Overloop, drie slaapkamers met vaste kasten en een badkamer met ligbad, douche, wastafel en tweede toilet.
Tweede verdieping:
De zolder is bereikbaar via een vlizotrap en biedt volop opbergruimte. Deze verdieping is eenvoudig om te bouwen tot een extra slaapkamer.
BIJZONDERHEDEN:
Energielabel C
Woonoppervlakte: ca. 187 m²
Perceeloppervlakte: 942 m²
Bouwjaar: 1935
Luxe nieuwe keuken met tegelvloer (2024)
Buiten schilderwerk nieuw (2024)
Veel originele jaren ’30 details
Grotendeels voorzien van dubbele beglazing
Ligt in nationaal park Drentse Aa met zandwegen en fietspaden
Paterswoldse Meer, Hoornse Meer en Zuidlaardermeer vlakbij
Kenmerken
Overdracht
- Vraagprijs
- € 675.000 k.k.
- Status
- Verkocht
- Aanvaarding
- In Overleg
Bouw
- Type woning
- Herenhuis
- Soort Bouw
- Bestaande Bouw
- Bouwjaar
- 1935
- Daktype
- Zadeldak
Oppervlakte en Inhoud
- Woonoppervlakte
- 187 m²
- Externe Bergruimte
- 0 m²
- Perceel
- -
- Totale kadastrale oppervlakte
- 942 m²
- Inhoud
- 783 m³
Indeling
- Aantal kamers
- 8
- Badkamer(s) voorzieningen
- Toilet, Douche, Wastafel, Ligbad
- Woonlagen
- 1
Energie
- Energielabel
- C
- Isolatievormen
- Dakisolatie, Muurisolatie, Grotendeels Dubbelglas
- Verwarming
- Cv Ketel
- Warmwater
- Cv Ketel
- Type CV Ketel
- Remeha
Kadastrale gegevens
- Oppervlakte Kadastraal
- 942 m²
- Omvang Kadastraal
- -
Buitenruimte
- Liggingen
- Aan Rustige Weg, Vrij Uitzicht, In Bosrijke Omgeving
- Tuin
- Achtertuin, Voortuin
- Locatie
- Zuid
Bergruimte
- Schuur/Berging
- Vrijstaand Hout
Parkeergelegenheid
- Parkeergelegenheid
- Op Eigen Terrein
Garage
- Soort(en) Garage
- Carport, Geen Garage
- Voorzieningen Garage
- -
- Capaciteit Garage
Media
Buurtinfo
Downloads
energielabel
Ken uw buurt
Viaductweg 3,
9751 HN, Haren gn
Voorzieningen in de buurt
Buurtstatistieken
Hypotheekgesprek aanvragen
Plan uw bezichtiging
Maak gebruik van ons planningsplatform of download de brochure voor meer informatie.