Kleiwerd 52
9746 CV, Groningen
€ 895.000 k.k.
Omschrijving
Nabij de stad, omgeven door groen en in de moderne gezinswijk Reitdiep gelegen comfortabele vrijstaande villa op een fraai hoekkavel met tuin op het zuiden!
Deze royale gezinswoning uit 2007 is gelegen in de deelwijk Kleiwerd, onderdeel uitmakend van de woonwijk Reitdiep. De wijk laat zich kenmerken door de groene lanen, rustige straten veel groen en een bijna autoluw karakter omdat er geen doorgaande wegen zijn. Een ideale plek voor een gezin!
De woning verkeert in een uitstekende staat van onderhoud en is gesitueerd op een perceel van 540 m². Bij binnenkomst wordt u verwelkomd door een ruime living met een stijlvolle gietvloer en vloerverwarming (2023), een sfeervolle gashaard, een eetgedeelte en een moderne open keuken. De huidige eigenaar heeft de woning aan de achterzijde uitgebouwd waardoor de living aanzienlijk vergroot is. De speelse indeling en vele lichtinval maken dit leefgedeelte bijzonder aangenaam. Via dubbele deuren én via de bijkeuken heeft u toegang tot de zonnige tuin met groot terras op het zuiden.
De woning is ruim en licht, wat ook op de eerste verdieping duidelijk zichtbaar is. Hier bevinden zich vier slaapkamers en een moderne badkamer. De tweede etage is praktisch ingedeeld met nog eens twee extra slaapkamers met hoge plafonds en een ruime overloop met sauna. In totaal beschikt de woning over maar liefst zes slaapkamers en een ruime badkamer, wat zorgt voor voldoende leefruimte voor het hele gezin. De fraai aangelegde achtertuin, gelegen op het zuiden, biedt een heerlijke plek om te genieten van de rustige omgeving tussen stad en land. Met een diepte van bijna 10 meter en een breedte van meer dan 15 meter kunt u hier optimaal ontspannen in de zon. De eigen oprit biedt toegang tot de tuin via de achterzijde. De vrijstaande volledig geïsoleerde garage garage van circa 22 m² is voorzien van elektra, een elektrische deur en een deur naar de tuin, en biedt volop ruimte voor diverse doeleinden.
Het deelplan Groot-Heemwerd in de wijk Reitdiep is geïnspireerd op het charmante Groninger landschap met zijn gemoedelijke dorpjes. Deze wijk wordt omgeven door de uitgestrekte, groene noordwestkant van de stad en bestaat uit kleine, gezellige woonbuurten. Dit resulteert in rustige, kindvriendelijke straten met veel groen en een landelijke sfeer. De wijk Reitdiep is een levendige en populaire wijk aan de noordwestzijde van de stad en heeft voor iedereen veel te bieden. Er is een winkelboulevard met grote supermarkt (Jumbo) en verschillende winkeltjes. In de wijk is een school en kinderopvang, meerdere sportvoorzieningen, gezondheidscentrum en een goede ontsluiting naar openbaar vervoer (transferium) en de ringweg. De ligging aan de rand van de stad is gunstig voor wandelen, fietsen en sporten in een mooie buitenomgeving. Het ligt naast het Zernike complex, maar brengt u per fiets ook binnen 15 minuten in de gezellige binnenstad.
Kortom: de perfecte woning in een buurt waar veel gezinnen en liefhebbers van rust, ruimte en natuur met veel plezier wonen!
INDELING:
Begane grond:
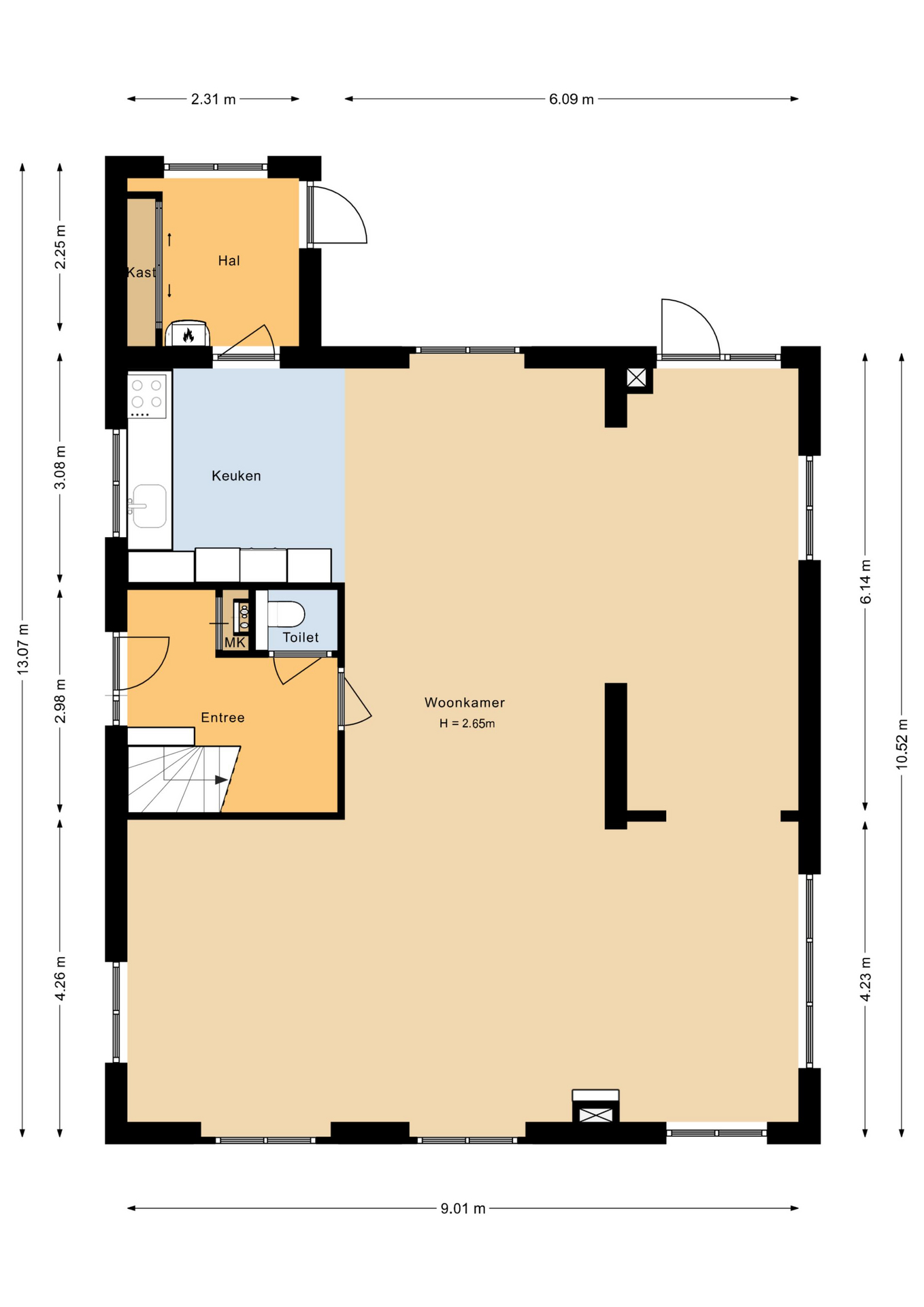
Entree/hal met trapopgang, modern toilet. L-vormige living met gashaard en openslaande deuren naar de achtertuin, moderne open keuken voorzien van diverse inbouwapparatuur, bijkeuken met toegang naar de achtertuin.
Eerste verdieping:
Overloop, 4 slaapkamers, moderne badkamer met douche, ligbad, wastafelmeubel met 2 kranen en wandcloset.
Tweede verdieping:
Overloop met witgoedaansluiting en sauna, 2 slaapkamers.
BIJZONDERHEDEN:
Energielabel: A
Woonoppervlak: ca. 213 m²
Perceelgrootte: 540 m²
Volledig geïsoleerd
Instapklaar
6 slaapkamers
De begane grond is uitgerust met vloerverwarming
V.v. waterontharder, Quooker en alarminstallatie
De woonkamer en 3 slaapkamers zijn voorzien van een airco
Speeltuintje op steenworp afstand
Binnen 1 minuut heeft u een prachtig zicht over de landerijen
Ligging nabij Zernike Science Park
Deze royale gezinswoning uit 2007 is gelegen in de deelwijk Kleiwerd, onderdeel uitmakend van de woonwijk Reitdiep. De wijk laat zich kenmerken door de groene lanen, rustige straten veel groen en een bijna autoluw karakter omdat er geen doorgaande wegen zijn. Een ideale plek voor een gezin!
De woning verkeert in een uitstekende staat van onderhoud en is gesitueerd op een perceel van 540 m². Bij binnenkomst wordt u verwelkomd door een ruime living met een stijlvolle gietvloer en vloerverwarming (2023), een sfeervolle gashaard, een eetgedeelte en een moderne open keuken. De huidige eigenaar heeft de woning aan de achterzijde uitgebouwd waardoor de living aanzienlijk vergroot is. De speelse indeling en vele lichtinval maken dit leefgedeelte bijzonder aangenaam. Via dubbele deuren én via de bijkeuken heeft u toegang tot de zonnige tuin met groot terras op het zuiden.
De woning is ruim en licht, wat ook op de eerste verdieping duidelijk zichtbaar is. Hier bevinden zich vier slaapkamers en een moderne badkamer. De tweede etage is praktisch ingedeeld met nog eens twee extra slaapkamers met hoge plafonds en een ruime overloop met sauna. In totaal beschikt de woning over maar liefst zes slaapkamers en een ruime badkamer, wat zorgt voor voldoende leefruimte voor het hele gezin. De fraai aangelegde achtertuin, gelegen op het zuiden, biedt een heerlijke plek om te genieten van de rustige omgeving tussen stad en land. Met een diepte van bijna 10 meter en een breedte van meer dan 15 meter kunt u hier optimaal ontspannen in de zon. De eigen oprit biedt toegang tot de tuin via de achterzijde. De vrijstaande volledig geïsoleerde garage garage van circa 22 m² is voorzien van elektra, een elektrische deur en een deur naar de tuin, en biedt volop ruimte voor diverse doeleinden.
Het deelplan Groot-Heemwerd in de wijk Reitdiep is geïnspireerd op het charmante Groninger landschap met zijn gemoedelijke dorpjes. Deze wijk wordt omgeven door de uitgestrekte, groene noordwestkant van de stad en bestaat uit kleine, gezellige woonbuurten. Dit resulteert in rustige, kindvriendelijke straten met veel groen en een landelijke sfeer. De wijk Reitdiep is een levendige en populaire wijk aan de noordwestzijde van de stad en heeft voor iedereen veel te bieden. Er is een winkelboulevard met grote supermarkt (Jumbo) en verschillende winkeltjes. In de wijk is een school en kinderopvang, meerdere sportvoorzieningen, gezondheidscentrum en een goede ontsluiting naar openbaar vervoer (transferium) en de ringweg. De ligging aan de rand van de stad is gunstig voor wandelen, fietsen en sporten in een mooie buitenomgeving. Het ligt naast het Zernike complex, maar brengt u per fiets ook binnen 15 minuten in de gezellige binnenstad.
Kortom: de perfecte woning in een buurt waar veel gezinnen en liefhebbers van rust, ruimte en natuur met veel plezier wonen!
INDELING:
Begane grond:
Entree/hal met trapopgang, modern toilet. L-vormige living met gashaard en openslaande deuren naar de achtertuin, moderne open keuken voorzien van diverse inbouwapparatuur, bijkeuken met toegang naar de achtertuin.
Eerste verdieping:
Overloop, 4 slaapkamers, moderne badkamer met douche, ligbad, wastafelmeubel met 2 kranen en wandcloset.
Tweede verdieping:
Overloop met witgoedaansluiting en sauna, 2 slaapkamers.
BIJZONDERHEDEN:
Energielabel: A
Woonoppervlak: ca. 213 m²
Perceelgrootte: 540 m²
Volledig geïsoleerd
Instapklaar
6 slaapkamers
De begane grond is uitgerust met vloerverwarming
V.v. waterontharder, Quooker en alarminstallatie
De woonkamer en 3 slaapkamers zijn voorzien van een airco
Speeltuintje op steenworp afstand
Binnen 1 minuut heeft u een prachtig zicht over de landerijen
Ligging nabij Zernike Science Park
Lees meer
Kenmerken
- Aantal kamers: 7
- Woonoppervlakte: 213 m²
- Perceeloppervlakte: 540 m²
- Inhoud: 1021 m³
- Bouwjaar: 2007
- Energielabel: A
Media
Downloads
Omschrijving
Nabij de stad, omgeven door groen en in de moderne gezinswijk Reitdiep gelegen comfortabele vrijstaande villa op een fraai hoekkavel met tuin op het zuiden!Deze royale gezinswoning uit 2007 is gelegen in de deelwijk Kleiwerd, onderdeel uitmakend van de woonwijk Reitdiep. De wijk laat zich kenmerken door de groene lanen, rustige straten veel groen en een bijna autoluw karakter omdat er geen doorgaande wegen zijn. Een ideale plek voor een gezin!
De woning verkeert in een uitstekende staat van onderhoud en is gesitueerd op een perceel van 540 m². Bij binnenkomst wordt u verwelkomd door een ruime living met een stijlvolle gietvloer en vloerverwarming (2023), een sfeervolle gashaard, een eetgedeelte en een moderne open keuken. De huidige eigenaar heeft de woning aan de achterzijde uitgebouwd waardoor de living aanzienlijk vergroot is. De speelse indeling en vele lichtinval maken dit leefgedeelte bijzonder aangenaam. Via dubbele deuren én via de bijkeuken heeft u toegang tot de zonnige tuin met groot terras op het zuiden.
De woning is ruim en licht, wat ook op de eerste verdieping duidelijk zichtbaar is. Hier bevinden zich vier slaapkamers en een moderne badkamer. De tweede etage is praktisch ingedeeld met nog eens twee extra slaapkamers met hoge plafonds en een ruime overloop met sauna. In totaal beschikt de woning over maar liefst zes slaapkamers en een ruime badkamer, wat zorgt voor voldoende leefruimte voor het hele gezin. De fraai aangelegde achtertuin, gelegen op het zuiden, biedt een heerlijke plek om te genieten van de rustige omgeving tussen stad en land. Met een diepte van bijna 10 meter en een breedte van meer dan 15 meter kunt u hier optimaal ontspannen in de zon. De eigen oprit biedt toegang tot de tuin via de achterzijde. De vrijstaande volledig geïsoleerde garage garage van circa 22 m² is voorzien van elektra, een elektrische deur en een deur naar de tuin, en biedt volop ruimte voor diverse doeleinden.
Het deelplan Groot-Heemwerd in de wijk Reitdiep is geïnspireerd op het charmante Groninger landschap met zijn gemoedelijke dorpjes. Deze wijk wordt omgeven door de uitgestrekte, groene noordwestkant van de stad en bestaat uit kleine, gezellige woonbuurten. Dit resulteert in rustige, kindvriendelijke straten met veel groen en een landelijke sfeer. De wijk Reitdiep is een levendige en populaire wijk aan de noordwestzijde van de stad en heeft voor iedereen veel te bieden. Er is een winkelboulevard met grote supermarkt (Jumbo) en verschillende winkeltjes. In de wijk is een school en kinderopvang, meerdere sportvoorzieningen, gezondheidscentrum en een goede ontsluiting naar openbaar vervoer (transferium) en de ringweg. De ligging aan de rand van de stad is gunstig voor wandelen, fietsen en sporten in een mooie buitenomgeving. Het ligt naast het Zernike complex, maar brengt u per fiets ook binnen 15 minuten in de gezellige binnenstad.
Kortom: de perfecte woning in een buurt waar veel gezinnen en liefhebbers van rust, ruimte en natuur met veel plezier wonen!
INDELING:
Begane grond:
Entree/hal met trapopgang, modern toilet. L-vormige living met gashaard en openslaande deuren naar de achtertuin, moderne open keuken voorzien van diverse inbouwapparatuur, bijkeuken met toegang naar de achtertuin.
Eerste verdieping:
Overloop, 4 slaapkamers, moderne badkamer met douche, ligbad, wastafelmeubel met 2 kranen en wandcloset.
Tweede verdieping:
Overloop met witgoedaansluiting en sauna, 2 slaapkamers.
BIJZONDERHEDEN:
Energielabel: A
Woonoppervlak: ca. 213 m²
Perceelgrootte: 540 m²
Volledig geïsoleerd
Instapklaar
6 slaapkamers
De begane grond is uitgerust met vloerverwarming
V.v. waterontharder, Quooker en alarminstallatie
De woonkamer en 3 slaapkamers zijn voorzien van een airco
Speeltuintje op steenworp afstand
Binnen 1 minuut heeft u een prachtig zicht over de landerijen
Ligging nabij Zernike Science Park
Kenmerken
Overdracht
- Vraagprijs
- € 895.000 k.k.
- Status
- Verkocht
- Aanvaarding
- In Overleg
Bouw
- Type woning
- Villa
- Soort Bouw
- Bestaande Bouw
- Bouwjaar
- 2007
- Daktype
- Zadeldak
Oppervlakte en Inhoud
- Woonoppervlakte
- 213 m²
- Externe Bergruimte
- 22 m²
- Perceel
- 3180 m²
- Totale kadastrale oppervlakte
- 540 m²
- Inhoud
- 1021 m³
Indeling
- Aantal kamers
- 7
- Badkamer(s) voorzieningen
- Woonlagen
- 1
Energie
- Energielabel
- A
- Isolatievormen
- Dakisolatie, Muurisolatie, Vloerisolatie, Dubbel Glas, Volledig Geisoleerd, Hr Glas
- Verwarming
- Cv Ketel, Vloerverwarming Gedeeltelijk
- Warmwater
- Cv Ketel
- Type CV Ketel
Kadastrale gegevens
- Oppervlakte Kadastraal
- 540 m²
- Omvang Kadastraal
- Geheel Perceel
Buitenruimte
- Liggingen
- Aan Rustige Weg, In Woonwijk, Beschutte Ligging
- Tuin
- Tuin Rondom
- Locatie
- -
Bergruimte
- Schuur/Berging
- -
Parkeergelegenheid
- Parkeergelegenheid
- Op Eigen Terrein
Garage
- Soort(en) Garage
- Vrijstaand Hout
- Voorzieningen Garage
- Elektra, Elektrische Deur
- Capaciteit Garage
- 1
Media
Buurtinfo
Downloads
Ken uw buurt
Kleiwerd 52,
9746 CV, Groningen
Voorzieningen in de buurt
Buurtstatistieken
Hypotheekgesprek aanvragen
Plan uw bezichtiging
Maak gebruik van ons planningsplatform of download de brochure voor meer informatie.