Meeroeverslaan 257
9613 AE, Meerstad
€ 1.095.000 k.k.
Omschrijving
Modern vrijstaand woonhuis uit 2020 met riante tuin aan het water en een prachtig uitzicht over het Woldmeer!
Deze prachtige en energiezuinige woning is gasloos gebouwd en voorzien van een warmtepomp en combineert comfort, licht en ruimte op een manier die meteen een gevoel van thuiskomen geeft. Op de begane grond bevindt zich een lichte en royale living met een moderne open keuken en een hoogwaardige stenen vloer met vloerverwarming. De openslaande deuren geven toegang tot de fraai aangelegde achtertuin op het zuidwesten, waar u volop geniet van zon, rust en privacy. Op de eerste verdieping vindt u vier slaapkamers en een moderne badkamer. De slaapkamers zijn tevens voorzien van vloerverwarming die per kamer een thermostaat hebben. Via de vaste trap bereikt u de tweede verdieping voorzien van een vijfde slaapkamer met ensuite een 2e badkamer en een multifunctionele open ruimte met vaste kasten wand. Van deze ruimte is eenvoudig een zesde slaapkamer te realiseren. De tuin is sfeervol ingericht met meerdere zitplekken, waarvan een deel overdekt, zodat er altijd wel een fijne plek in de zon of schaduw te vinden is. Ook vindt u hier een heerlijke buiten–barrel sauna, waardoor recreëren aan huis eveneens mogelijk is. Helemaal achterin grenst de tuin aan het water, met een eigen steiger en terras: ideaal om te genieten aan het water, of om te suppen en kanoën. Aan de voorzijde van de woning kijkt u blijvend vrij uit over het meer, waardoor het huis een unieke en ongeëvenaarde beleving van vrijheid en ruimte biedt. Een bijzonder fijn gezinshuis op een prachtige plek!
De wijk Meeroevers is het eerste woongebied in Meerstad aan de rand van de stad Groningen. Hoewel de wijk midden in de natuur ligt, beschikt de wijk over een riant aantal voorzieningen. Op fietsafstand van de woning bevinden 2 basisscholen en kinderopvang, waardoor de wijk uitstekend geschikt is voor gezinnen met kinderen. Onlangs zijn er een grote supermarkt en sporthal geopend. Ook de directe omgeving van Meerstad biedt vele voorzieningen. Het centrum van de stad Groningen ligt bovendien op 20 minuten fietsafstand. Vanuit Meerstad vaar je bovendien binnen 45 minuten in de binnenstad van Groningen!
Kortom: waterrijk, comfortabel, gasloos en energiezuinig wonen in het mooiste en groenste stadsdeel van Groningen!
INDELING:
Begane grond:
Entree/hal met trapopgang, wandcloset met fonteintje, L-vormige Living met openslaande deuren naar de tuin, luxe open keuken met kookeiland en diverse inbouwapparatuur, bijkeuken met toegang naar buiten en naar de geïsoleerde garage voorzien van vloerverwarming.
Eerste verdieping:
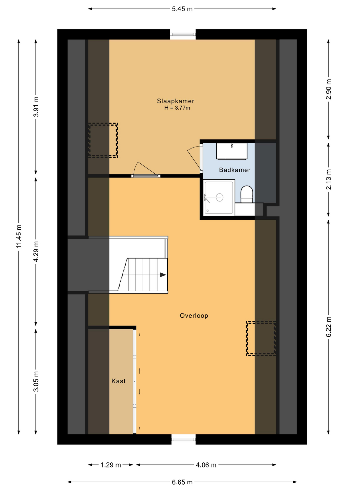
Overloop, 4 slaapkamers, moderne badkamer met douche, ligbad, dubbele wastafel en wandcloset.
Tweede verdieping:
Riante overloop, 5e zeer ruime slaapkamer met ensuite een 2e badkamer (recent gerealiseerd) voorzien van douche, wastafel en wandcloset.
BIJZONDERHEDEN:
Bouwjaar: 2020
Energielabel: A+++
Woonoppervlak: ca. 218 m² (incl. geïsoleerde garage die momenteel als bijkeuken in gebruik is)
Perceelgrootte: 725 m²
5 slaapkamers (mogelijkheid tot 6)
Voorzien van 2 badkamers
Volledig geïsoleerd en warmtepomp
Voorzien van 30 zonnepanelen
Geheel voorzien van vloerverwarming m.u.v. de zolder
Buiten schilderwerk (zomer 2025)
Oprit met ruimte voor 4 auto’s
Prachtig uitzicht over het Woldmeer
Deze prachtige en energiezuinige woning is gasloos gebouwd en voorzien van een warmtepomp en combineert comfort, licht en ruimte op een manier die meteen een gevoel van thuiskomen geeft. Op de begane grond bevindt zich een lichte en royale living met een moderne open keuken en een hoogwaardige stenen vloer met vloerverwarming. De openslaande deuren geven toegang tot de fraai aangelegde achtertuin op het zuidwesten, waar u volop geniet van zon, rust en privacy. Op de eerste verdieping vindt u vier slaapkamers en een moderne badkamer. De slaapkamers zijn tevens voorzien van vloerverwarming die per kamer een thermostaat hebben. Via de vaste trap bereikt u de tweede verdieping voorzien van een vijfde slaapkamer met ensuite een 2e badkamer en een multifunctionele open ruimte met vaste kasten wand. Van deze ruimte is eenvoudig een zesde slaapkamer te realiseren. De tuin is sfeervol ingericht met meerdere zitplekken, waarvan een deel overdekt, zodat er altijd wel een fijne plek in de zon of schaduw te vinden is. Ook vindt u hier een heerlijke buiten–barrel sauna, waardoor recreëren aan huis eveneens mogelijk is. Helemaal achterin grenst de tuin aan het water, met een eigen steiger en terras: ideaal om te genieten aan het water, of om te suppen en kanoën. Aan de voorzijde van de woning kijkt u blijvend vrij uit over het meer, waardoor het huis een unieke en ongeëvenaarde beleving van vrijheid en ruimte biedt. Een bijzonder fijn gezinshuis op een prachtige plek!
De wijk Meeroevers is het eerste woongebied in Meerstad aan de rand van de stad Groningen. Hoewel de wijk midden in de natuur ligt, beschikt de wijk over een riant aantal voorzieningen. Op fietsafstand van de woning bevinden 2 basisscholen en kinderopvang, waardoor de wijk uitstekend geschikt is voor gezinnen met kinderen. Onlangs zijn er een grote supermarkt en sporthal geopend. Ook de directe omgeving van Meerstad biedt vele voorzieningen. Het centrum van de stad Groningen ligt bovendien op 20 minuten fietsafstand. Vanuit Meerstad vaar je bovendien binnen 45 minuten in de binnenstad van Groningen!
Kortom: waterrijk, comfortabel, gasloos en energiezuinig wonen in het mooiste en groenste stadsdeel van Groningen!
INDELING:
Begane grond:
Entree/hal met trapopgang, wandcloset met fonteintje, L-vormige Living met openslaande deuren naar de tuin, luxe open keuken met kookeiland en diverse inbouwapparatuur, bijkeuken met toegang naar buiten en naar de geïsoleerde garage voorzien van vloerverwarming.
Eerste verdieping:
Overloop, 4 slaapkamers, moderne badkamer met douche, ligbad, dubbele wastafel en wandcloset.
Tweede verdieping:
Riante overloop, 5e zeer ruime slaapkamer met ensuite een 2e badkamer (recent gerealiseerd) voorzien van douche, wastafel en wandcloset.
BIJZONDERHEDEN:
Bouwjaar: 2020
Energielabel: A+++
Woonoppervlak: ca. 218 m² (incl. geïsoleerde garage die momenteel als bijkeuken in gebruik is)
Perceelgrootte: 725 m²
5 slaapkamers (mogelijkheid tot 6)
Voorzien van 2 badkamers
Volledig geïsoleerd en warmtepomp
Voorzien van 30 zonnepanelen
Geheel voorzien van vloerverwarming m.u.v. de zolder
Buiten schilderwerk (zomer 2025)
Oprit met ruimte voor 4 auto’s
Prachtig uitzicht over het Woldmeer
Lees meer
Kenmerken
- Aantal kamers: 6
- Woonoppervlakte: 202 m²
- Perceeloppervlakte: 725 m²
- Inhoud: 819 m³
- Bouwjaar: 2020
- Energielabel: A+++
Media
Downloads
Omschrijving
Modern vrijstaand woonhuis uit 2020 met riante tuin aan het water en een prachtig uitzicht over het Woldmeer!Deze prachtige en energiezuinige woning is gasloos gebouwd en voorzien van een warmtepomp en combineert comfort, licht en ruimte op een manier die meteen een gevoel van thuiskomen geeft. Op de begane grond bevindt zich een lichte en royale living met een moderne open keuken en een hoogwaardige stenen vloer met vloerverwarming. De openslaande deuren geven toegang tot de fraai aangelegde achtertuin op het zuidwesten, waar u volop geniet van zon, rust en privacy. Op de eerste verdieping vindt u vier slaapkamers en een moderne badkamer. De slaapkamers zijn tevens voorzien van vloerverwarming die per kamer een thermostaat hebben. Via de vaste trap bereikt u de tweede verdieping voorzien van een vijfde slaapkamer met ensuite een 2e badkamer en een multifunctionele open ruimte met vaste kasten wand. Van deze ruimte is eenvoudig een zesde slaapkamer te realiseren. De tuin is sfeervol ingericht met meerdere zitplekken, waarvan een deel overdekt, zodat er altijd wel een fijne plek in de zon of schaduw te vinden is. Ook vindt u hier een heerlijke buiten–barrel sauna, waardoor recreëren aan huis eveneens mogelijk is. Helemaal achterin grenst de tuin aan het water, met een eigen steiger en terras: ideaal om te genieten aan het water, of om te suppen en kanoën. Aan de voorzijde van de woning kijkt u blijvend vrij uit over het meer, waardoor het huis een unieke en ongeëvenaarde beleving van vrijheid en ruimte biedt. Een bijzonder fijn gezinshuis op een prachtige plek!
De wijk Meeroevers is het eerste woongebied in Meerstad aan de rand van de stad Groningen. Hoewel de wijk midden in de natuur ligt, beschikt de wijk over een riant aantal voorzieningen. Op fietsafstand van de woning bevinden 2 basisscholen en kinderopvang, waardoor de wijk uitstekend geschikt is voor gezinnen met kinderen. Onlangs zijn er een grote supermarkt en sporthal geopend. Ook de directe omgeving van Meerstad biedt vele voorzieningen. Het centrum van de stad Groningen ligt bovendien op 20 minuten fietsafstand. Vanuit Meerstad vaar je bovendien binnen 45 minuten in de binnenstad van Groningen!
Kortom: waterrijk, comfortabel, gasloos en energiezuinig wonen in het mooiste en groenste stadsdeel van Groningen!
INDELING:
Begane grond:
Entree/hal met trapopgang, wandcloset met fonteintje, L-vormige Living met openslaande deuren naar de tuin, luxe open keuken met kookeiland en diverse inbouwapparatuur, bijkeuken met toegang naar buiten en naar de geïsoleerde garage voorzien van vloerverwarming.
Eerste verdieping:
Overloop, 4 slaapkamers, moderne badkamer met douche, ligbad, dubbele wastafel en wandcloset.
Tweede verdieping:
Riante overloop, 5e zeer ruime slaapkamer met ensuite een 2e badkamer (recent gerealiseerd) voorzien van douche, wastafel en wandcloset.
BIJZONDERHEDEN:
Bouwjaar: 2020
Energielabel: A+++
Woonoppervlak: ca. 218 m² (incl. geïsoleerde garage die momenteel als bijkeuken in gebruik is)
Perceelgrootte: 725 m²
5 slaapkamers (mogelijkheid tot 6)
Voorzien van 2 badkamers
Volledig geïsoleerd en warmtepomp
Voorzien van 30 zonnepanelen
Geheel voorzien van vloerverwarming m.u.v. de zolder
Buiten schilderwerk (zomer 2025)
Oprit met ruimte voor 4 auto’s
Prachtig uitzicht over het Woldmeer
Kenmerken
Overdracht
- Vraagprijs
- € 1.095.000 k.k.
- Status
- Beschikbaar
- Aanvaarding
- In Overleg
Bouw
- Type woning
- Villa
- Soort Bouw
- Bestaande Bouw
- Bouwjaar
- 2020
- Daktype
- Zadeldak
Oppervlakte en Inhoud
- Woonoppervlakte
- 202 m²
- Externe Bergruimte
- 10 m²
- Perceel
- 1643 m²
- Totale kadastrale oppervlakte
- 725 m²
- Inhoud
- 819 m³
Indeling
- Aantal kamers
- 6
- Badkamer(s) voorzieningen
- Ligbad, Toilet, Douche, Wastafelmeubel
- Woonlagen
- 1
Energie
- Energielabel
- A Ppp
- Isolatievormen
- Volledig Geisoleerd
- Verwarming
- Vloerverwarming Geheel, Warmtepomp, Houtkachel
- Warmwater
- Type CV Ketel
Kadastrale gegevens
- Oppervlakte Kadastraal
- 725 m²
- Omvang Kadastraal
- Geheel Perceel
Buitenruimte
- Liggingen
- Aan Water, Aan Rustige Weg, In Woonwijk, Vrij Uitzicht
- Tuin
- Achtertuin, Voortuin, Zijtuin
- Locatie
- Zuidwest
Bergruimte
- Schuur/Berging
- Vrijstaand Hout
Parkeergelegenheid
- Parkeergelegenheid
- Openbaar Parkeren, Op Eigen Terrein
Garage
- Soort(en) Garage
- Aangebouwd Steen
- Voorzieningen Garage
- Elektra
- Capaciteit Garage
- 1
Media
Buurtinfo
Downloads
Ken uw buurt
Meeroeverslaan 257,
9613 AE, Meerstad
Voorzieningen in de buurt
Buurtstatistieken
Hypotheekgesprek aanvragen
Plan uw bezichtiging
Maak gebruik van ons planningsplatform of download de brochure voor meer informatie.